





Croatie, Côte de Dalmatie, Split ville - Bureaux à louer
ID: 4549/30Informations de base
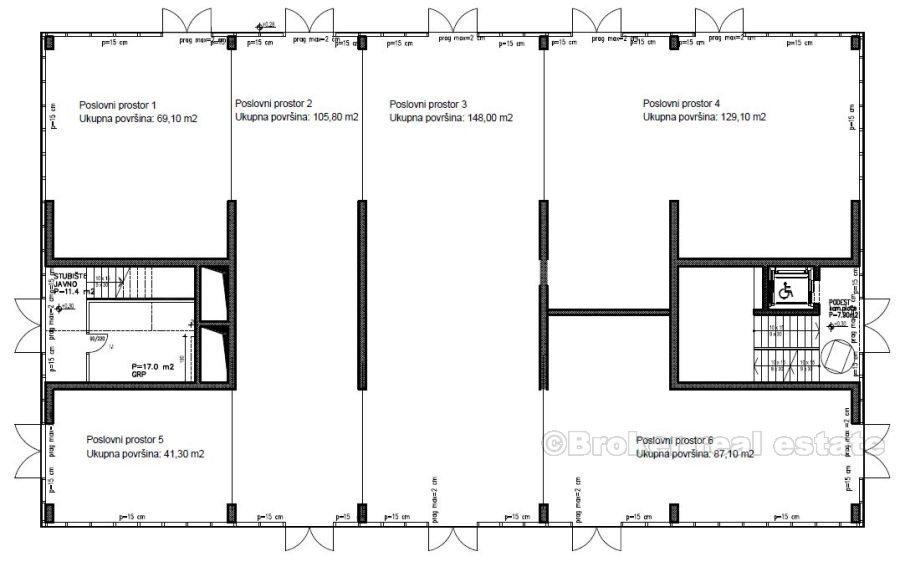
Espace vital:322 m2
Chambres:3
Salles de bain:8
À propos de la propriété
Louer l’espace de bureau au rez-de-chaussée au Poljice surface de la route de 323 m2 (sur le plan d’étage: PP PP 1 + 2 + PP3) près de KBC Firule. La zone se compose de 6 étages (trois souterrains qui servent de garages et zone de stockage et trois portion de tête comme espace de bureau). Toutes les unités de condominiums sont entièrement meublés, fonctionnel, et pour tout bâtiment à logements séparés détient un permis d’utilisation. La possibilité de louer plus d’endroits Parkin. La chambre est en face: nord-sud-ouest. Le verre entier, disponibles à partir de 01. 01. 2016. Le prix de location mensuel est de 17 EUR / m2 + TVA. Le prix d’une place de parking est de 75 EUR + TVA, un garage 150 + TVA par mois.
Emplacement
Split ville, Côte de Dalmatie
Split est la deuxième plus grande ville de Croatie après la capitale Zagreb, la plus grande ville de Dalmatie et la plus grande ville de la côte croate. Elle se situe sur la rive orientale de la mer Adriatique et s'étend sur une péninsule centrale et ses environs. Plaque tournante du transport intrarégional et destination touristique prisée, la ville est reliée aux îles de l'Adriatique.
Vous cherchez autre chose?








