





Croatia, Dalmatia islands, Pasman - 12 apartments by the sea, for sale
ID: 2015/75Basic information
Land space:835 m2
Sea distance:10 m
Seafront
Property advantages
- Sea view
Amenities
- Energy Certificate
- Modern
- Parking
About the property
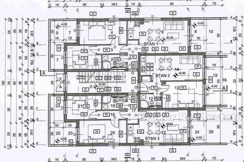
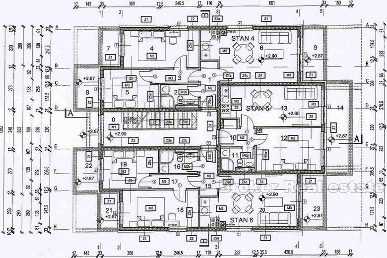
Smaller residential building with 12 apartments in the building is located on the island of Pasman, in the first row to the sea.
It consists of 4 floors, ground floor, first floor, second floor and attic.
On each floor there are three apartments, two-bedroom and one bedroom.
One bedroom apartment living area of 39m2 consists of an entrance area, hallway, bedroom, kitchen, dining room, living room and balcony.
Two bedroom apartments living area of 59m2 consists of an entrance area, hallway, two bedrooms, kitchen, dining room, living room and balcony.
Finishing is expected for October of 2017.
Location
Pasman, Dalmatia islands
Pašman is an Adriatic island off the coast of northern Dalmatia in Croatia with an area of 60.11 km2, located to the south of Zadar, surrounded by the islands of Ugljan to the northwest, Iž to the west, and Dugi Otok and Žut to the southwest. Among all islands in the Croatian archipelago, it is Pašman that has the biggest green surface considering its total area.
Are you looking for something else?






