




Croatia, Dalmatia coast, Split city, Lučac-Manuš - Spacious apartment for renovation
ID: 2036/117Basic information
Living space:116 m2
Bedrooms:4
Bathrooms:2
Sea distance:800 m
Amenities
- Energy Certificate
- Parking
About the property
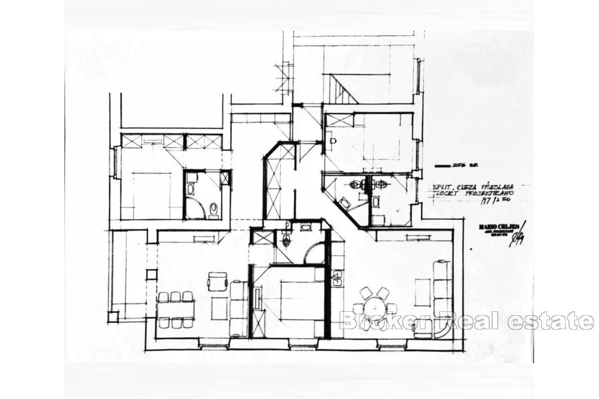
Spacious manor apartment on the ground floor, for renovation.
Total living area 115.62 m², with a covered terrace of 6.31 m². The apartment consists of a spacious hallway, a storage room, four comfortable rooms, a living room with a dining room, a kitchen, a
bathroom and an additional toilet.
The floor plan of the apartment offers great potential for adaptation according to one’s own wishes and needs, with the possibility of modernizing the space and optimal use of the surface, and even the
possibility of dividing the apartment into two or more units ideal for tourism.
The covered terrace further adds to the value of this property, ideal for a family or investment.
An additional advantage is the parking lot behind the building, which is used by all tenants.
Given the excellent location, this is not just an ordinary apartment, but also a very good investment.
Location
Split city, Dalmatia coast
Split is the second-largest city of Croatia after the capital Zagreb, the largest city in Dalmatia and the largest city on the Croatian coast. It lies on the eastern shore of the Adriatic Sea and is spread over a central peninsula and its surroundings. An intraregional transport hub and popular tourist destination, the city is linked to the Adriatic islands and the Apennine Peninsula.
Are you looking for something else?







