





Croatia, Dalmatia coast, Marina - Luxury villa with panoramic view
ID: 2041/29Basic information
Living space:237 m2
Land space:660 m2
Bedrooms:4
Bathrooms:5
Floors:3
Sea distance:300 m
Property advantages
- Sea view
- Swimming pool
- Newly built
- Luxury
Amenities
- Energy Certificate
- Modern
- Parking
About the property
The luxury villa under construction in the Marina area. This superbly designed modern luxury holiday villa with 237 m2 of living space is located on a plot of 660 m2. It is spread over three floors connected by separate stairs.
On the ground floor, there is a spacious living room, dining room, open kitchen, entertainment area, toilet, and exit to the covered terrace and garden.
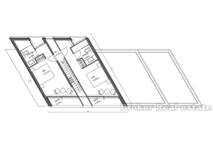
On the upper floor, there are two rooms with private bathrooms which offer a beautiful panoramic view of the entire bay.
On the lower floor, there are two rooms with private bathrooms overlooking the pool and the nature surrounding the villa.
All rooms are filled with natural light, thanks to the very large floor-to-ceiling glass walls that open up the interior to the beautiful sea view, respectively to the garden, sunbathing area, and swimming pool (which are conveniently placed for maximum privacy).
In front of the house, there is a beautiful garden and swimming pool that offers complete privacy. The pool and sun deck provide complete privacy as they are below street level. Floor-to-ceiling glass doors on all levels allow natural light to fill all the rooms, while at the same time opening the space to the nature around and the beautiful sea view. Parking spaces are provided on the ground floor.
The micro-location is close to the town center and all the facilities necessary for life. Macro-location is 25 minutes drive from Split airport, 20 minutes from Trogir, 45 minutes from Split.
The house is currently in an roh bau state, which offers the potential buyer the opportunity to adapt the final interior design to the wishes of the new owners. Completion of construction is planned by the beginning of 2023.
Location
Marina, Dalmatia coast
Marina is located on the Adriatic Highway. It is a tourist village with a pebble beach shaded by olive and pine trees. Tourists also enjoy the atmosphere of ancient Dalmatian wine cellars, fresh fish and quality local wines, a blend of the ancient and the modern. It is popular location for yachting, diving and fishing.
Are you looking for something else?









