





Croatia, Dalmatia islands, Pag - Building land with sea view
ID: 2021/304Basic information
Land space:4000 m2
Sea distance:350 m
Property advantages
- Sea view
- Swimming pool
- Luxury
Amenities
- Modern
- Parking
About the property
If you want a property blended with nature, surrounded by centuries-old olive trees, pine trees, cypresses, without a lot of neighbors, tourists and summer noise. Then this building plot is ideal for you.
The land in its area of 4000m2 is located on a small hill with an unobstructed view of the sea and nearby islands. It is infrastructurally equipped, with an access road, electricity and water supply network on it.
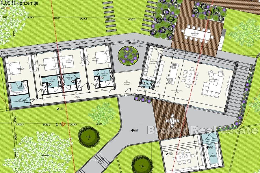
It is only 350m away from the nearest beaches, and the first shop and cafe are 500m away. The microlocation itself is protected and declared a botanical reserve. Conceptual solutions for the new villa were made in accordance with the natural environment (see pictures).
The place where the land is located is a classic fishing-Mediterranean with many small beaches (the closest to the land is 350m away) and landscaped promenades ideal for long summer walks or cycling in a healthy botanical environment. The place has been officially declared a botanical reserve known for a thousand centuries-old olive trees of imposing shapes.
The nearest shops and restaurants are 500m away while the nearest airport is an hour away by car.
Location
Pag, Dalmatia islands
Pag belongs to the north Dalmatian archipelago and it extends northwest–southeast along the coast, forming the Velebit Channel. The island has an area of 284.56 square kilometers and the coastline is 269.2 kilometers. It is around 60 kilometers long and between 2 and 10 kilometers wide. The southwestern coast of the island is low, and the northwestern is steep and high.
Are you looking for something else?







