





Croatia, Dalmatia coast, Primosten - Large building land plot by the sea, for sale
ID: 4886/30Basic information
Land space:1193 m2
Sea distance:5 m
Seafront
Property advantages
- Sea view
- Swimming pool
Amenities
- Energy Certificate
- Garage
- Parking
About the property
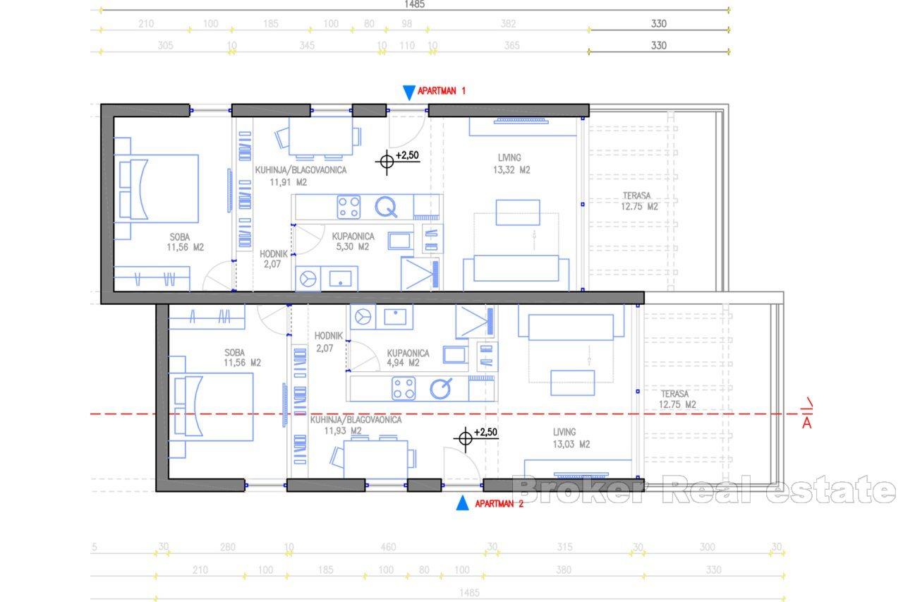
For sale is a building land, located in the first row to the sea, total area of 1193 m2. It is situated near Primosten and Grebastica, in the area of Krapanj, below the main road with a very good access path. All infrastructure is present. Given the location, the land offers a beautiful view of the sea and the entire bay.
The land has a building permit and a complete architectural project for the construction of two properties, each on three floors.
This excellent land provides plenty of opportunities, given its excellent location, position and surface.
Location
Primosten, Dalmatia coast
Primošten is a village and municipality in Šibenik-Knin County, Croatia. It is situated in the south, between the cities of Šibenik and Trogir, on the Adriatic coast. Primošten is famous for its huge and beautiful vineyards. The largest beach in Primošten is called Raduča, and its smaller part, Mala Raduča, is voted one of the 10 most beautiful beaches in Croatia.
Are you looking for something else?






