




Croatia, Dalmatia coast, Split city - Apartment in the stone house
ID: 4483/30Basic information
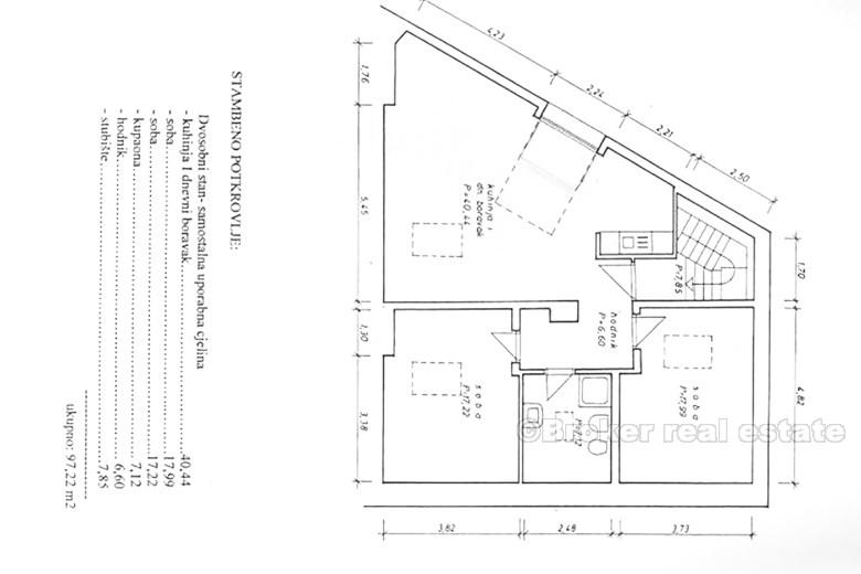
Living space:97 m2
Bedrooms:2
Bathrooms:1
Floors:1
Sea distance:50 m
About the property
In the attic small stone houses, apartment on the first floor, 50 meters from the promenade, with its own entrance from the staircase. It consists of two bedrooms, a large living room with kitchen, small balcony, and has access to a car. This is perfect, except for housing, and for tourist rental, and a categorization, office or studio. It was completely renovated in 2004. Possible purchase of the entire building, which is in the bottom floor commercial space.
Location
Split city, Dalmatia coast
Split is the second-largest city of Croatia after the capital Zagreb, the largest city in Dalmatia and the largest city on the Croatian coast. It lies on the eastern shore of the Adriatic Sea and is spread over a central peninsula and its surroundings. An intraregional transport hub and popular tourist destination, the city is linked to the Adriatic islands and the Apennine Peninsula.
Are you looking for something else?







