





Croatia, Dalmatia coast, Vodice - Newly built apartments with sea view
ID: 2044/04Basic information
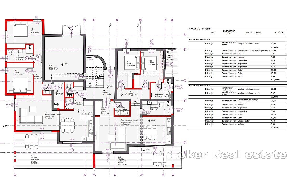
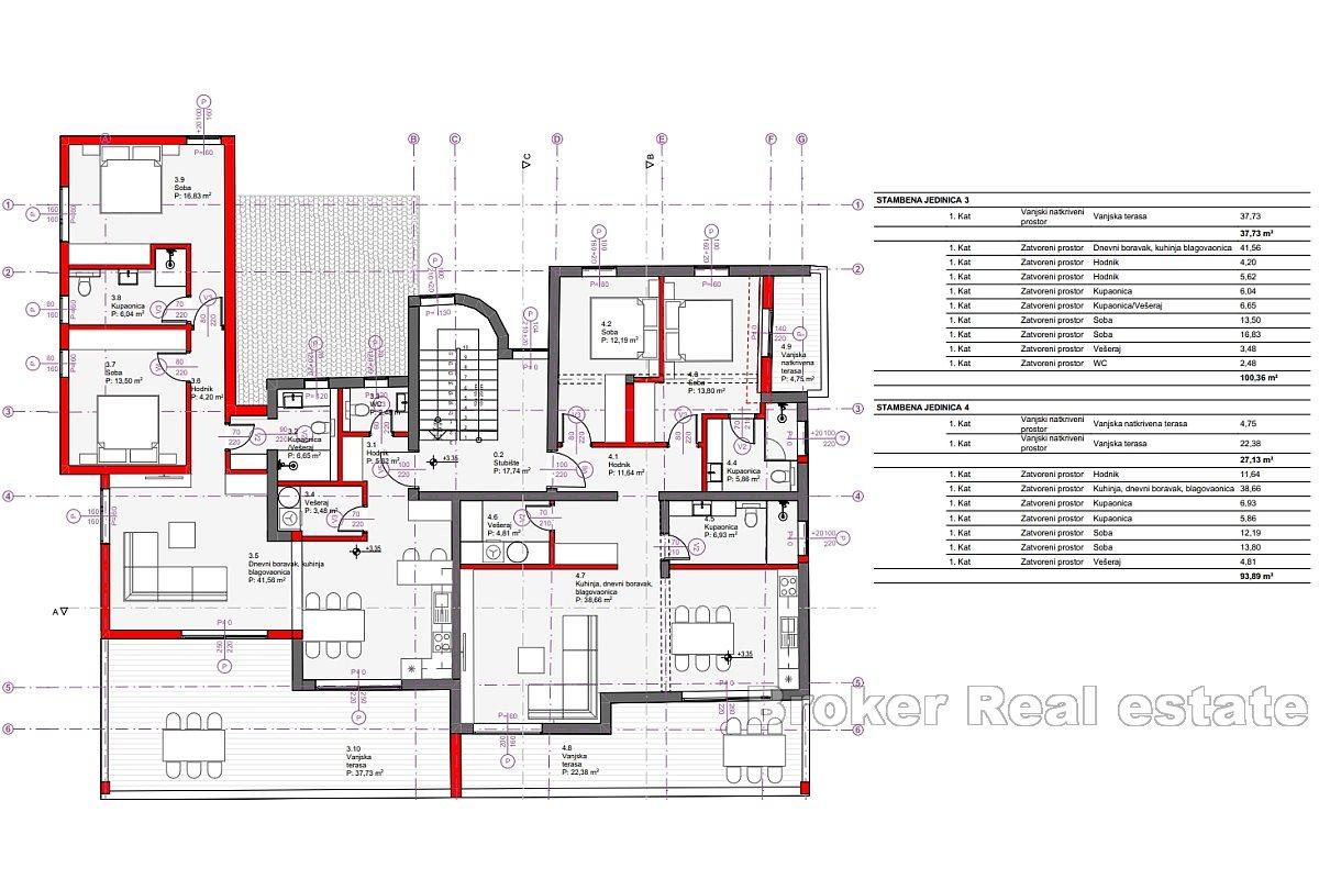
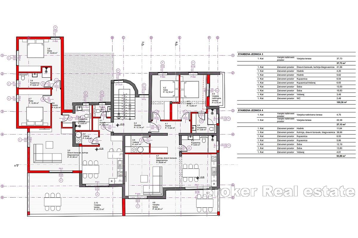
Living space:108 m2
Bedrooms:2
Bathrooms:2
Floors:1
Sea distance:350 m
Property advantages
- Sea view
- Swimming pool
Amenities
- Energy Certificate
- Parking
About the property
Newly built apartments located in an excellent position in the small Dalmatian town of Tribunj are for sale. The building is situated in a quiet area, just 300m from the sea and the beach. There are 6 apartments for sale, with 2 on each floor. This is a complete reconstruction of an existing building, featuring exceptionally high-quality construction. Ground floor apartments will have their own private pool. The listed prices include parking spaces.
All apartments have underfloor heating, complete stone flooring, and solar water heaters. Each room will be equipped with air conditioning.
The planned completion of the works is scheduled for summer 2025.
APARTMENT S1 RIGHT – 123m2 x 4000 € – 492,000€
APARTMENT S2 LEFT – 110m2 x 4000€ – 440,000€
APARTMENT S3 RIGHT – 119m2 x 3950€ – 470,000€
APARTMENT S4 LEFT – 107.5m2 x 3950€ – 424,000€
APARTMENT S5 RIGHT – 119m2 x 4000€ – 476,000€
APARTMENT S6 LEFT – 107.5m2 x 4000€ – 430,000€
Location
Vodice, Dalmatia coast
Vodice is a town, municipality and port in the Šibenik-Knin County, Croatia. Former fishing village transformed in the second half of the 20th century into tourist destination, when it was regularly among the most visited Dalmatian destinations. Vodice is located in a wide bay, 11 km northwest from Šibenik, 85 km from Split, and 62 km southeast from Zadar.
Are you looking for something else?









