





Croatia, Dalmatia islands, Solta - Building land with sea view
ID: 2016/507Basic information
Land space:800 m2
Sea distance:800 m
Property advantages
- Sea view
About the property
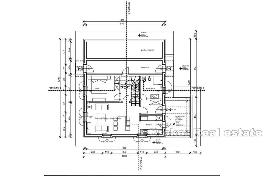
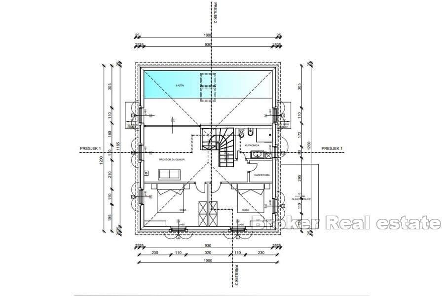
Building plot, with sea view, for sale, rectangular shape, total area 800 m2,
located on the island of Šolta, in the village Grohote, with all infrastructure connections nearby.
The land is located in a quiet environment, outside the center of Grohote, yet within a short walking distance from the center of the village and all amenities necessary for life.
The Rogač ferry port, which connects the island with Split, is only 800 meters away from the land.
The land has a valid building permit for a house with two floors and a swimming pool.
Considering the size of the land, the very quality position and valid building permit, the land seems to be an excellent choice for building a vacation property on this beautiful island.
Location
Solta, Dalmatia islands
Šolta is situated in the central Dalmatian archipelago, west of the island of Brač, south of Split and east of the Drvenik islands. On the north-eastern coast of the island there are the large bays of Rogač and Nečujam. The main fishing center is Maslinica, which is exposed to only north-westerly winds, making it a good shelter for smaller boats.
Are you looking for something else?





