





Kroatien, Dalmatien Inseln, Solta - Baugrundstück mit Meerblick
ID: 2016/507Grundinformation
Grundstücksgrösse:800 m2
Meeresentfernung:800 m
Immobilienvorteile
- Meerblick
Über die Immobilie
Baugrundstück, mit Meerblick, zu verkaufen, rechteckige Form, Gesamtfläche 800 m2,
befindet sich auf der Insel Šolta, im Dorf Grohote, mit allen Infrastrukturverbindungen in der Nähe.
Das Land befindet sich in einer ruhigen Umgebung, außerhalb des Zentrums von Grohote, jedoch nur wenige Gehminuten vom Zentrum des Dorfes und allen lebensnotwendigen Annehmlichkeiten entfernt.
Der Fährhafen Rogač, der die Insel mit Split verbindet, ist nur 800 Meter vom Land entfernt.
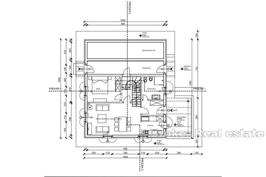
Das Land hat eine gültige Baugenehmigung für ein Haus mit zwei Etagen und einem Swimmingpool.
In Anbetracht der Größe des Grundstücks, der sehr guten Lage und der gültigen Baugenehmigung scheint das Land eine ausgezeichnete Wahl für den Bau einer Ferienimmobilie auf dieser wunderschönen Insel zu sein.
Standort
Solta, Dalmatien Inseln
Šolta liegt im mitteldalmatinischen Archipel, westlich der Insel Brač, südlich von Split und östlich der Drvenik-Inseln. An der Nordostküste der Insel liegen die großen Buchten Rogač und Nečujam. Das wichtigste Fischereizentrum ist Maslinica, das nur Nordwestwinden ausgesetzt ist und daher einen guten Schutz für kleinere Boote bietet.
Suchen Sie etwas anderes?





