





Croatia, Dalmatia coast, Split city, Grad - Commercial space in the heart of Diocletian's Palace
ID: 5230/30Basic information
Living space:111 m2
Bedrooms:2
Sea distance:150 m
Property advantages
- Stone house
Amenities
- Energy Certificate
About the property
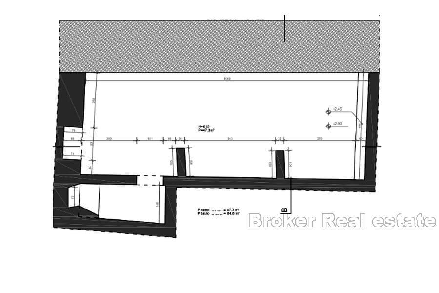
Unique commercial space located on the eastern part of Diocletian’s Palace with two entrances.
The total area of the space is 111.6 m2, a
consists of a basement of 47.3 m2 and a ground floor of 64.3 m2.
The floor in the office space was not made for flexibility for the future owner.
The entire eastern wall of the space is the original Roman wall with windows added in the early Middle Ages and has a Roman arch and passage frame made of brick.
The city center of Split consists of the ancient Diocletian’s Palace from the 4th century (under UNESCO protection since 1979), which is a unique example in the world. With a lot of old stone houses, beautiful beaches, Split is currently the most popular city for investment.
Location
Split city, Dalmatia coast
Split is the second-largest city of Croatia after the capital Zagreb, the largest city in Dalmatia and the largest city on the Croatian coast. It lies on the eastern shore of the Adriatic Sea and is spread over a central peninsula and its surroundings. An intraregional transport hub and popular tourist destination, the city is linked to the Adriatic islands and the Apennine Peninsula.
Similar properties
Are you looking for something else?





