





Chorvatsko, Dalmátské pobřeží, Split město, Grad - Obchodní prostory v srdci Diokleciánova paláce
ID: 5230/30Základní informace
Obytný prostor:111 m2
Ložnice:2
Vzdálenost moře:150 m
Výhody nemovitosti
- Kamenný dům
Vybavení
- Energetický certifikát
O nemovitosti
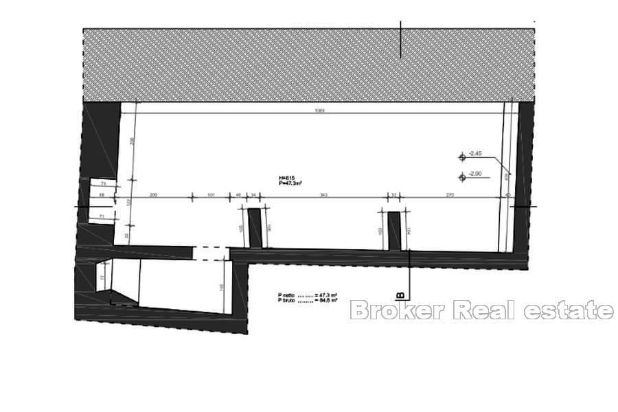
Unikátní obchodní prostor nacházející se ve východní části Diokleciánova paláce se dvěma vchody.
Celková plocha prostoru je 111,6 m2, a
sestává ze suterénu 47,3 m2 a přízemí 64,3 m2.
Podlaha v kancelářských prostorách nebyla vyrobena pro flexibilitu pro budoucího majitele.
Celá východní stěna prostoru je původní římská hradba s okny přistavěnými v raném středověku a má římský oblouk a průchozí rám z cihel.
Centrum města Split tvoří starobylý Diokleciánův palác ze 4. století (od roku 1979 pod ochranou UNESCO), který je světovým unikátem. Se spoustou starých kamenných domů, krásnými plážemi je Split v současnosti nejoblíbenějším městem pro investice.
Umístění
Split město, Dalmátské pobřeží
Split je po hlavním městě Záhřebu druhé největší město Chorvatska, největší město v Dalmácii a největší město na chorvatském pobřeží. Leží na východním pobřeží Jaderského moře a rozkládá se na centrálním poloostrově a jeho okolí. Vnitroregionální dopravní uzel a oblíbená turistická destinace, město je spojeno s jadranskými ostrovy a Apeninským poloostrovem.
Hledáte něco jiného?





