




Croatia, Dalmatia coast, Split city - Sućidar, three-bedroom apartment
ID: 2038/45Basic information
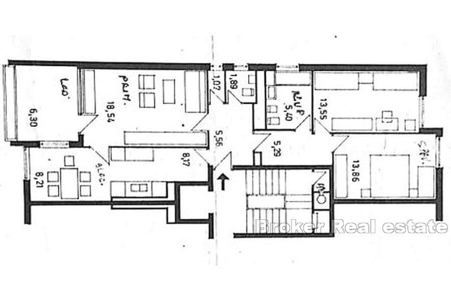
Living space:88 m2
Bedrooms:3
Bathrooms:2
Floors:1
Sea distance:1500 m
Amenities
- Energy Certificate
About the property
A three-bedroom apartment with a total living area of 88 m2 with a loggia is for sale.
It is located on the second floor of a building with a total of 5 floors.
It consists of a living room, a kitchen with a dining room, three bedrooms, two bathrooms and a loggia.
The apartment is full of daylight.
With its location and potential, it offers numerous possibilities either as a tourist.
Investment or family apartment within easy reach of all essential amenities: educational institutions, cafes, restaurants…
Location
Split city, Dalmatia coast
Split is the second-largest city of Croatia after the capital Zagreb, the largest city in Dalmatia and the largest city on the Croatian coast. It lies on the eastern shore of the Adriatic Sea and is spread over a central peninsula and its surroundings. An intraregional transport hub and popular tourist destination, the city is linked to the Adriatic islands and the Apennine Peninsula.
Are you looking for something else?







