




Croatie, Côte de Dalmatie, Split ville - Sućidar, appartement de trois chambres
ID: 2038/45Informations de base
Espace vital:88 m2
Chambres:3
Salles de bain:2
Planchers:1
Distance de la mer:1500 m
Commodités
- Certificat énergétique
À propos de la propriété
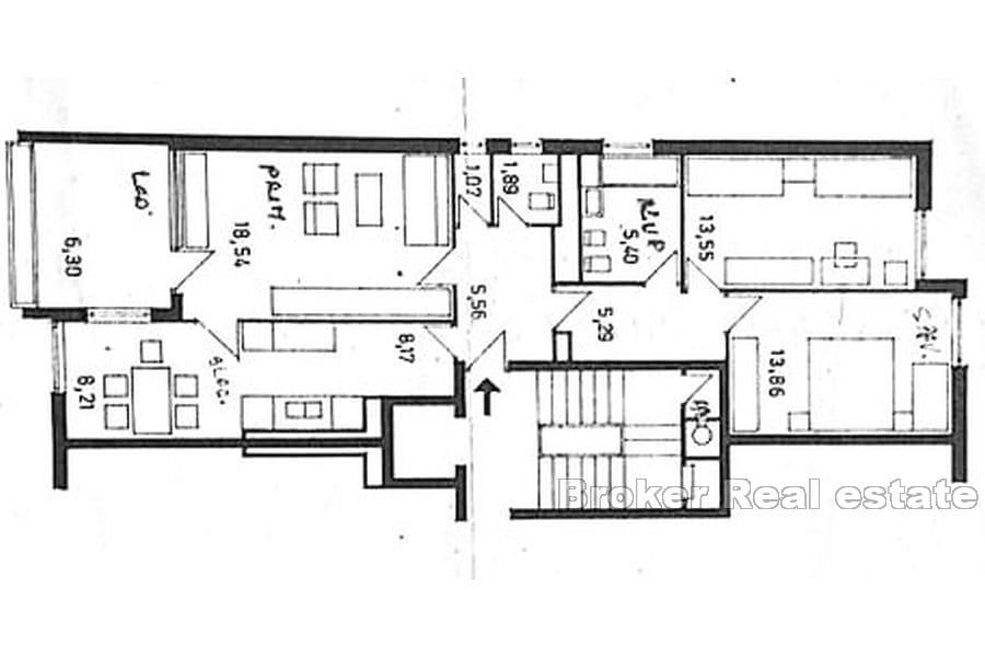
Un appartement de trois chambres d’une surface habitable totale de 88 m2 avec une loggia est à vendre.
Il est situé au deuxième étage d’un immeuble de 5 étages au total.
Il se compose d’un séjour, d’une cuisine avec une salle à manger, de trois chambres, de deux salles de bains et d’une loggia.
L’appartement est plein de lumière du jour.
De par sa situation et son potentiel, elle offre de nombreuses possibilités soit en tant que touristique.
investissement ou appartement familial à proximité de toutes les commodités essentielles : établissements d’enseignement, cafés, restaurants…
Emplacement
Split ville, Côte de Dalmatie
Split est la deuxième plus grande ville de Croatie après la capitale Zagreb, la plus grande ville de Dalmatie et la plus grande ville de la côte croate. Elle se situe sur la rive orientale de la mer Adriatique et s'étend sur une péninsule centrale et ses environs. Plaque tournante du transport intrarégional et destination touristique prisée, la ville est reliée aux îles de l'Adriatique.
Vous cherchez autre chose?







