





Croatia, Dalmatia coast, Trogir - Modern villa with sea view
ID: 2029/93Basic information
Living space:445 m2
Land space:580 m2
Bedrooms:3
Bathrooms:6
Floors:3
Sea distance:430 m
Property advantages
- Sea view
- Swimming pool
- Newly built
- Luxury
Amenities
- Energy Certificate
- Garage
- Modern
- Parking
About the property
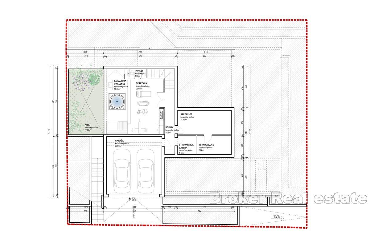
A modern villa with sea view, located in a picturesque and peaceful village not far from Trogir. The villa has a living area of 445 m² spread over three floors, and is set on a plot of approximately 580 m². The basement of the villa contains a garage, storage room, engine room, gym, wellness area with bathroom and additional toilet, and an atrium that allows natural light and ventilation.
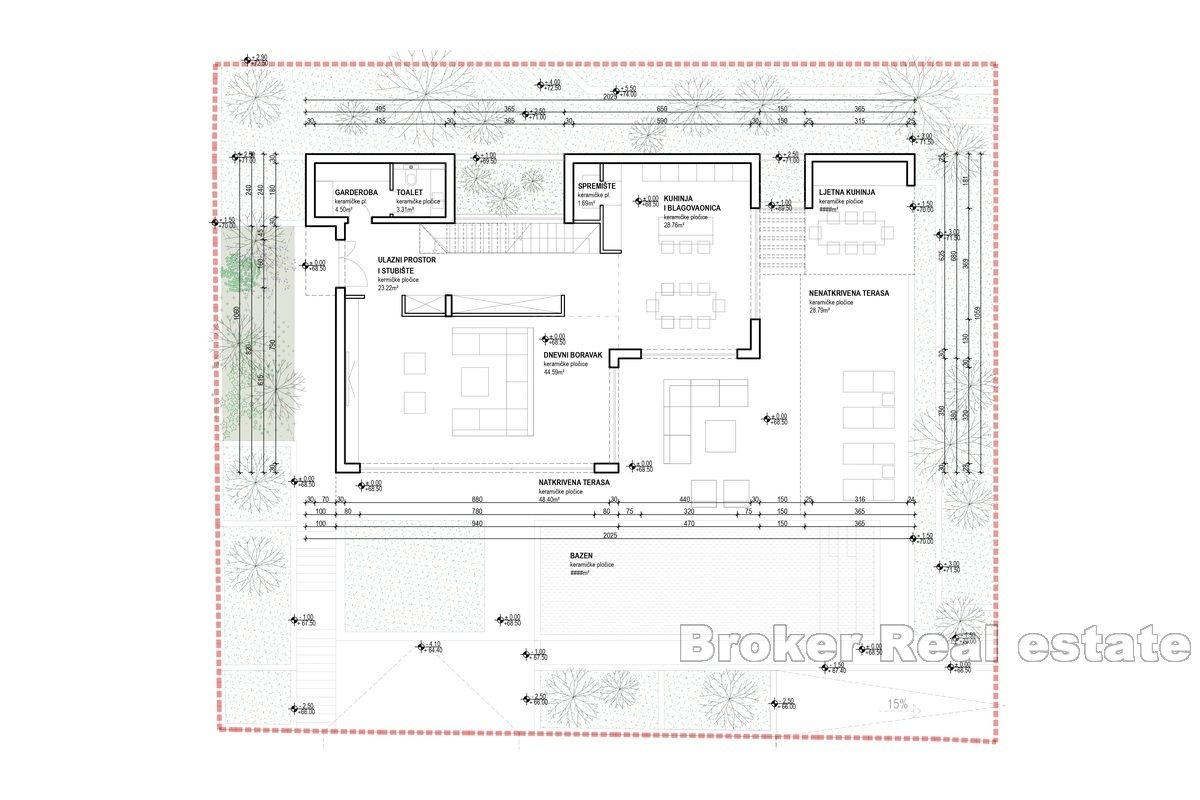
The ground floor includes a spacious living room, kitchen and dining room, storage room, dressing room and toilet. The living room opens onto two terraces – a covered terrace of 48 m² and an uncovered terrace of 28 m² – perfect for enjoying the sea view and sunset. A summer kitchen and swimming pool further complement the outdoor space, providing ideal conditions for relaxation or socializing.
The first floor consists of three bedrooms, each with its own dressing room and bathroom, ensuring maximum privacy and comfort. The green roof and covered terrace on this floor further emphasize the contemporary design and ecological orientation of the villa.
The surrounding area is known for its pebble beaches, crystal clear sea and opportunities for recreational activities such as sailing, diving and cycling. The proximity of the UNESCO city of Trogir and Split airport makes this location easily accessible, while the proximity of national parks such as Krka and Kornati offers opportunities for day trips.
This is a location that offers the perfect combination of privacy and proximity to all necessary amenities, making this villa an ideal investment for family life, vacation or tourist rental.
Location
Trogir, Dalmatia coast
Trogir is a historic town and harbour on the Adriatic coast in Split-Dalmatia County, Croatia. The historic city of Trogir is situated on a small island between the Croatian mainland and the island of Čiovo. It lies 27 kilometres west of the city of Split. Since 1997, the historic centre of Trogir has been included in the UNESCO list of World Heritage Sites.
Are you looking for something else?








