




Croazia, Costa Dalmazia, Trogir - Villa moderna con vista mare
ID: 2029/93Informazioni di base
Spazio vitale:445 m2
Spazio terrestre:580 m2
Camere da letto:3
Bagni:6
Piani:3
Distanza dal mare:430 m
Vantaggi della proprietà
- Vista sul mare
- Piscina
- Nuova costruzione
- Di lusso
Dotazioni
- Certificato energetico
- Garage
- Moderna
- Parcheggio
Sulla proprietà
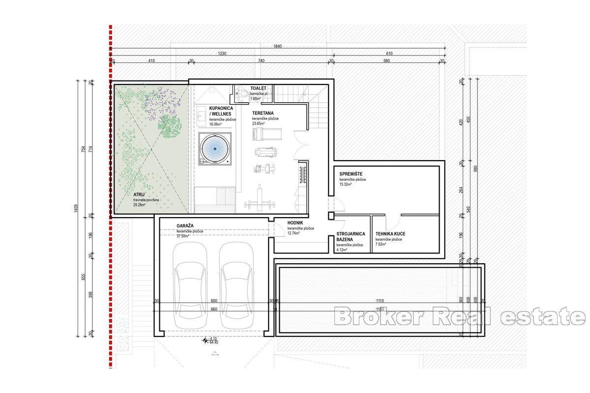
Villa moderna con vista sul mare, situata in un villaggio pittoresco e tranquillo non lontano da Trogir. La villa ha una superficie abitabile di 445 mq, che si estende su tre livelli, ed è ubicata su un terreno di circa 580 mq. Il piano seminterrato della villa contiene un garage, un ripostiglio, una sala macchine, una palestra, un’area benessere con bagno e ulteriore toilette, e un atrio che fornisce luce e ventilazione naturale.
Il piano terra comprende un ampio soggiorno, cucina e sala da pranzo, ripostiglio, guardaroba e bagno. Il soggiorno si apre su due terrazzi – uno coperto di 48 mq e uno scoperto di 28 mq – perfetti per godersi la vista del mare e del tramonto. La cucina estiva e la piscina completano inoltre lo spazio esterno, offrendo le condizioni ideali per rilassarsi o socializzare.
Il primo piano è composto da tre camere da letto, ciascuna con il proprio spogliatoio e bagno, che garantisce la massima privacy e comfort. Il tetto verde e la terrazza coperta su questo piano sottolineano ulteriormente il design contemporaneo e l’orientamento ecologico della villa.
La zona circostante è nota per le sue spiagge di ciottoli, il mare cristallino e le opportunità per attività ricreative come la vela, le immersioni e il ciclismo. La vicinanza della città UNESCO di Trogir e dell’aeroporto di Spalato rende questa località facilmente accessibile, mentre la vicinanza dei parchi nazionali come Krka e Kornati offre l’opportunità per gite di un giorno.
Si tratta di una posizione che offre una perfetta combinazione di privacy e vicinanza a tutti i servizi necessari, il che rende questa villa un investimento ideale per la vita familiare, le vacanze o l’affitto turistico.
Posizione
Trogir, Costa Dalmazia
Trogir è una città storica e un porto sulla costa adriatica nella contea di Spalato e Dalmazia, in Croazia. La storica città di Trogir è situata su una piccola isola tra la terraferma croata e l'isola di Čiovo. Si trova a 27 chilometri a ovest della città di Spalato. Dal 1997 il centro storico di Trogir è stato inserito nell'elenco dei patrimoni dell'umanità dell'UNESCO.
Stai cercando qualcos'altro?




















