





Croatia, Dalmatia islands, Korcula - House for renovation, first row to the sea
ID: 5278/30Basic information
Living space:182 m2
Land space:645 m2
Bedrooms:9
Bathrooms:19
Floors:4
Sea distance:10 m
Seafront
Property advantages
- Sea view
- Swimming pool
Amenities
- Energy Certificate
- Parking
About the property
Interesting property located on the island of Korčula in the first row to the sea. It is a real estate for reconstruction, located on a plot of 645 m2. The current size of the building is 182 m2 and it was built in 1920.
The building has two entrances, one is on the east side, from the main street, and the other is on the west side, from a side street. The plot has complete project documentation and a building permit for the main and auxiliary building. According to the project, the construction of a smaller hotel with a restaurant is planned. The hotel consists of a ground floor, two floors and a gallery, and there is a restaurant in front of the house.
The ground floor consists of two separate parts connected by a common entrance. In the first part, there is a coffee bar with a terrace, and two associated toilets. In the second part, there is a restaurant with a dining room, two toilets, a kitchen, two storage rooms, a room with an engine room, and a wellness area equipped with a sauna, jacuzzi, hydromassage tub, and two bathrooms.
The first floor consists of three bedrooms, each of which has its own bathroom and exit to the balcony. On the same floor, there is also a reception with two toilets, which has access to a spacious terrace with a sunbathing area and a swimming pool.
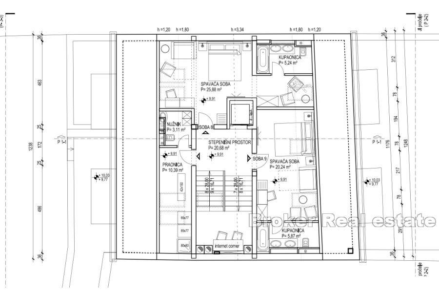
The second floor consists of four bedrooms, each of which has its own bathroom and exit to the balcony.
An internal staircase leads to the last floor, i.e. the gallery, which consists of two bedrooms with their own bathrooms, two toilets, a laundry room, and a common room for hanging out.
The orientation of the building is south-east, and it has two parking spaces in front of the yard. There is also the possibility of converting the building into a residential building with one, two or three units, or into a multi-residential building with four units.
Thanks to its proximity to the sea and all the essential facilities for life, such as shops, restaurants, coffee bars and the like, this property is an excellent tourist investment.
Location
Korcula, Dalmatia islands
The island of Korčula belongs to the central Dalmatian archipelago, separated from the Pelješac peninsula by a narrow Strait of Pelješac.Main settlements on the island are towns of Korčula, Blato and Vela Luka. Villages along the coast are Brna, Račišće, Lumbarda and Prižba; Žrnovo, Pupnat, Smokvica and Čara are located inland. The climate is Mediterranean.
Are you looking for something else?





