





Chorwacja, Dalmacja Wyspy, Korcula - Dom do remontu, pierwszy rząd do morza
ID: 5278/30Podstawowe informacje
Przestrzeń życiowa:182 m2
Przestrzeń lądowa:645 m2
Sypialnie:9
Łazienki:19
Podłogi:4
Odległość morska:10 m
Wybrzeże
Zalety nieruchomości
- Basen
- Widok morza
Udogodnienia
- Certyfikat Energetyczny
- Parking
O nieruchomości
Ciekawa nieruchomość położona na wyspie Korčula w pierwszym rzędzie do morza. Jest to nieruchomość do przebudowy, położona na działce o powierzchni 645 m2. Obecna wielkość budynku wynosi 182 m2 i został wybudowany w 1920 roku.
Budynek posiada dwa wejścia, jedno od strony wschodniej, od głównej ulicy, drugie od strony zachodniej, od bocznej ulicy. Działka posiada pełną dokumentację projektową oraz pozwolenie na budowę budynku głównego i pomocniczego. Zgodnie z projektem planowana jest budowa mniejszego hotelu z restauracją. Hotel składa się z parteru, dwóch pięter i galerii, a przed domem znajduje się restauracja.
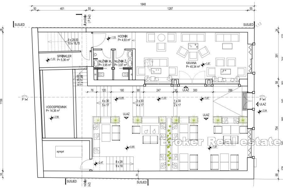
Parter składa się z dwóch oddzielnych części połączonych wspólnym wejściem. W pierwszej części znajduje się kawiarnia z tarasem oraz dwie towarzyszące toalety. W drugiej części znajduje się restauracja z jadalnią, dwie toalety, kuchnia, dwa pomieszczenia gospodarcze, pomieszczenie z maszynownią oraz strefa wellness wyposażona w saunę, jacuzzi, wannę z hydromasażem i dwie łazienki.
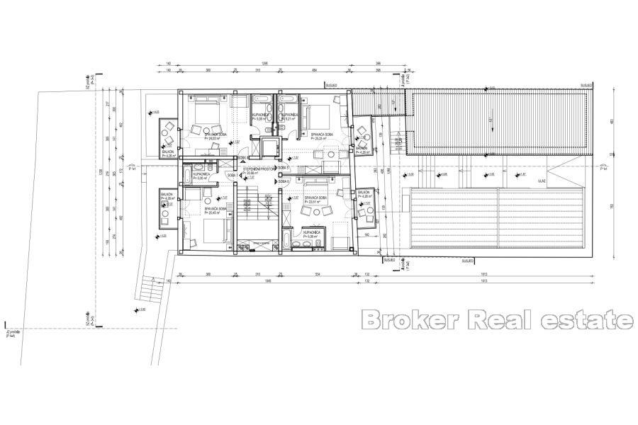
Piętro składa się z trzech sypialni, z których każda posiada własną łazienkę oraz wyjście na balkon. Na tym samym piętrze znajduje się również recepcja z dwiema toaletami, z której jest wyjście na przestronny taras z miejscem do opalania i basenem.
Drugie piętro składa się z czterech sypialni, z których każda posiada własną łazienkę oraz wyjście na balkon.
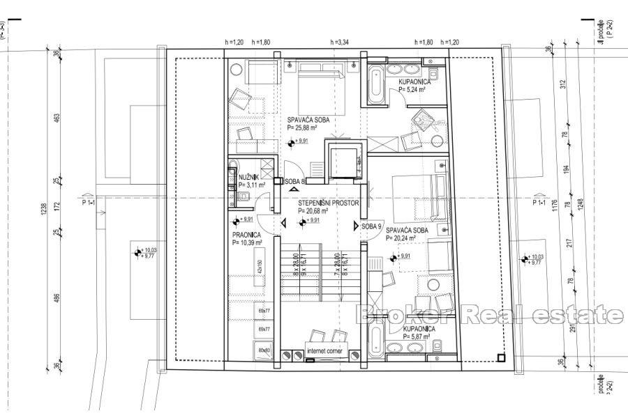
Wewnętrzna klatka schodowa prowadzi na ostatnie piętro, czyli galerię, na którą składają się dwie sypialnie z własnymi łazienkami, dwie toalety, pralnia oraz świetlica do spędzania czasu.
Orientacja budynku jest południowo-wschodnia i posiada dwa miejsca parkingowe przed podwórkiem. Istnieje również możliwość przebudowy budynku na budynek mieszkalny jedno, dwu lub trzylokalowy lub wielorodzinny z czterema lokalami.
Dzięki bliskości morza i wszystkim niezbędnym do życia udogodnieniom, takim jak sklepy, restauracje, kawiarnie itp., ta nieruchomość jest doskonałą inwestycją turystyczną.
Lokalizacja
Korcula, Dalmacja Wyspy
Wyspa Korčula należy do archipelagu środkowej Dalmacji, oddzielonego od półwyspu Pelješac wąską cieśniną Pelješac. Główne osady na wyspie to miasta Korčula, Blato i Vela Luka. Wioski wzdłuż wybrzeża to Brna, Račišće, Lumbarda i Prižba; W głębi lądu znajdują się Žrnovo, Pupnat, Smokvica i Čara. Klimat jest śródziemnomorski.
Szukasz czegoś innego?





