





Croatie, Iles de Dalmatie, Korcula - Maison à rénover, première rangée de la mer
ID: 5278/30Informations de base
Espace vital:182 m2
Espace terrestre:645 m2
Chambres:9
Salles de bain:19
Planchers:4
Distance de la mer:10 m
Front de mer
Avantages immobiliers
- Piscine
- Vue sur la mer
Commodités
- Certificat énergétique
- Parking
À propos de la propriété
Propriété intéressante située sur l’île de Korčula au premier rang de la mer. C’est un bien immobilier à reconstruire, situé sur un terrain de 645 m2. La taille actuelle du bâtiment est de 182 m2 et il a été construit en 1920.
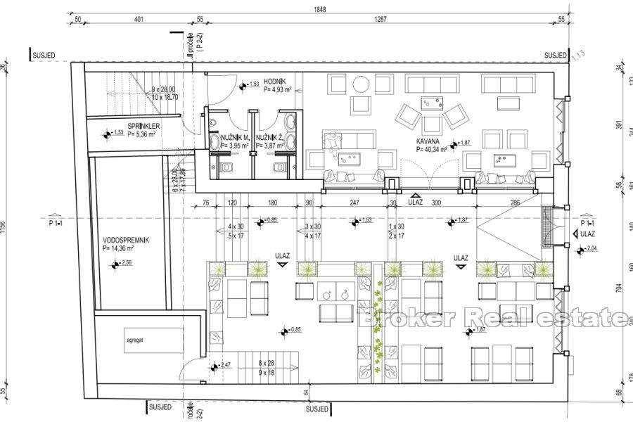
Le bâtiment a deux entrées, l’une du côté est, depuis la rue principale, et l’autre du côté ouest, depuis une rue latérale. La parcelle dispose d’une documentation de projet complète et d’un permis de construire pour le bâtiment principal et auxiliaire. Selon le projet, la construction d’un petit hôtel avec un restaurant est prévue. L’hôtel se compose d’un rez-de-chaussée, de deux étages et d’une galerie, et il y a un restaurant en face de la maison.
Le rez-de-chaussée se compose de deux parties distinctes reliées par une entrée commune. Dans la première partie, il y a un café-bar avec une terrasse, et deux toilettes associées. Dans la deuxième partie, il y a un restaurant avec une salle à manger, deux toilettes, une cuisine, deux débarras, une pièce avec une salle des machines et un espace bien-être équipé d’un sauna, d’un jacuzzi, d’une baignoire d’hydromassage et de deux salles de bains.
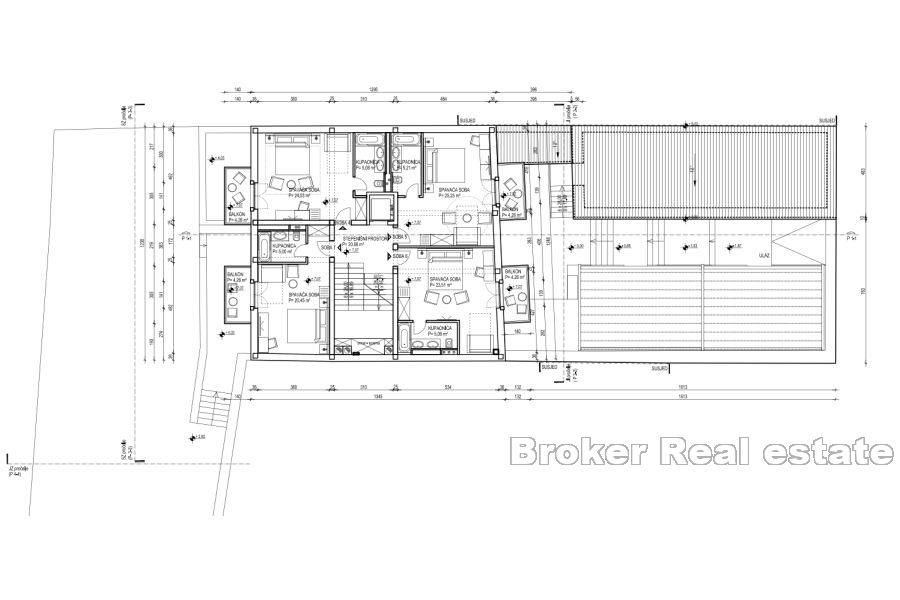
Le premier étage se compose de trois chambres, chacune ayant sa propre salle de bain et sortie sur le balcon. Au même étage, il y a aussi une réception avec deux toilettes, qui a accès à une terrasse spacieuse avec un solarium et une piscine.
Le deuxième étage se compose de quatre chambres, chacune ayant sa propre salle de bain et sortie sur le balcon.
Un escalier intérieur mène au dernier étage, c’est-à-dire la galerie, qui se compose de deux chambres avec leurs propres salles de bains, de deux toilettes, d’une buanderie et d’une pièce commune pour se détendre.
L’orientation du bâtiment est sud-est et il dispose de deux places de parking devant la cour. Il y a aussi la possibilité de convertir l’immeuble en immeuble résidentiel de un, deux ou trois logements, ou en immeuble multirésidentiel de quatre logements.
Grâce à sa proximité avec la mer et toutes les commodités essentielles à la vie, telles que les magasins, les restaurants, les cafés, etc., cette propriété est un excellent investissement touristique.
Emplacement
Korcula, Iles de Dalmatie
L'île de Korčula appartient à l'archipel de la Dalmatie centrale, séparée de la péninsule de Pelješac par un étroit détroit de Pelješac. Les principales agglomérations de l'île sont les villes de Korčula, Blato et Vela Luka. Les villages le long de la côte sont Brna, Račišće, Lumbarda et Prižba ; Žrnovo, Pupnat, Smokvica et Čara sont situés à l'intérieur des terres. Le climat est méditerranéen.
Vous cherchez autre chose?





