





Croatia, Dalmatia coast, Omis - Building land with sea view
ID: 2013/118Basic information
Land space:600 m2
Sea distance:60 m
Property advantages
- Sea view
About the property
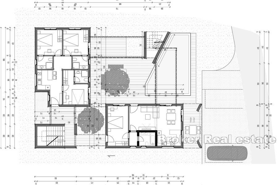
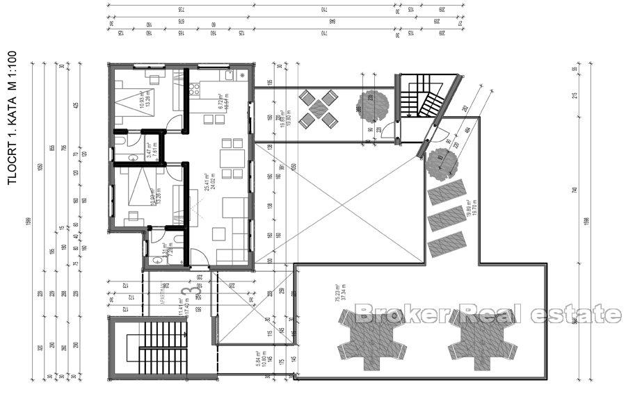
Very attractive building land with a building permit, only 60 meters from the sea and beautiful pebble beaches. The land is located between Split and Omis, and as such is very attractive for year-round stay, but also tourism.
The land extends to about 600 m2 and has a valid permit for a building of 256 m2. The villa spreads over 2 floors, where the ground floor has 182 m2, while the upper floor is 73 m2, with a total of 6 rooms and 6 bathrooms. It also has open terraces, a swimming pool and parking for 3 vehicles. From villa extends a sea view.
The property has an access road, and next to it there is a connection for electricity and water.
Location
Omis, Dalmatia coast
Omiš is a town and port in the Dalmatia region of Croatia, and a municipality in the Split-Dalmatia County. The town is approximately 25 kilometers southeast of Croatia's second-largest city, Split, where the Cetina River meets the Adriatic Sea. Omiš was well known in the past as a pirate city whose ships were built for attack and fast retrieval into the mouth of the Cetina River.
Are you looking for something else?








