





Hrvatska, Dalmacija obala, Omiš - Građevinsko zemljište s pogledom na more
ID: 2013/118Osnovni podaci
Zemljište:600 m2
Udaljenost od mora:60 m
Prednosti nekretnine
- Pogled na more
O nekretnini
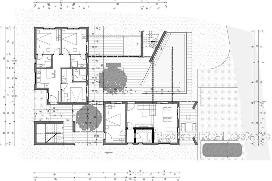
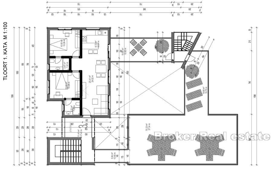
Izuzetno atraktivno građevinsko zemljište sa ishodovanom građevinskom dozvolom, tek 60ak metara od mora i lijepih i uređenih plaža. Zemljište se nalazi između Splita i Omiša, te je kao takvo vrlo atraktivno i za cijelogodišnji boravak, ali i turizam.
Zemljište se proteže na oko 600 m2, a ima pravomoćnu dozvolu za objekt od 256 m2. Vila se proteže na 2 kata, gdje prizemlje ima 182 m2, dok je gornji kat od 73 m2, s ukupno 6 soba i 6 sanitarhih čvorova. Također ima i otvorene terase te bazen i parking za 3 vozila. S vile se pruža pogled na more.
Nekretnina ima pristupni put, te se odmah do nalazi i priključak za struju i vodu.
Lokacija
Omiš, Dalmacija obala
Omiš je grad i luka u Dalmaciji u Hrvatskoj, te općina u Splitsko-dalmatinskoj županiji. Grad je udaljen otprilike 25 kilometara jugoistočno od drugog najvećeg grada Hrvatske, Splita, gdje se rijeka Cetina ulijeva u Jadransko more. Omiš je u prošlosti bio poznat kao gusarski grad čiji su brodovi građeni za napad i brzo vraćanje u ušće rijeke Cetine.
Tražiš li nešto drugo?








