





Chorvatsko, Dalmátské pobřeží, Omis - Stavební pozemek s výhledem na moře
ID: 2013/118Základní informace
Pozemní prostor:600 m2
Vzdálenost moře:60 m
Výhody nemovitosti
- Výhled na moře
O nemovitosti
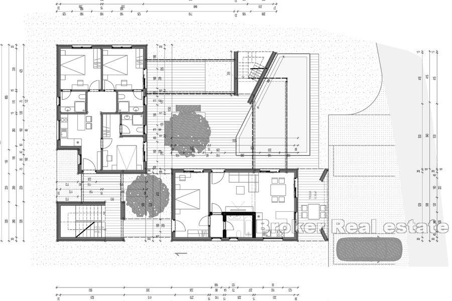
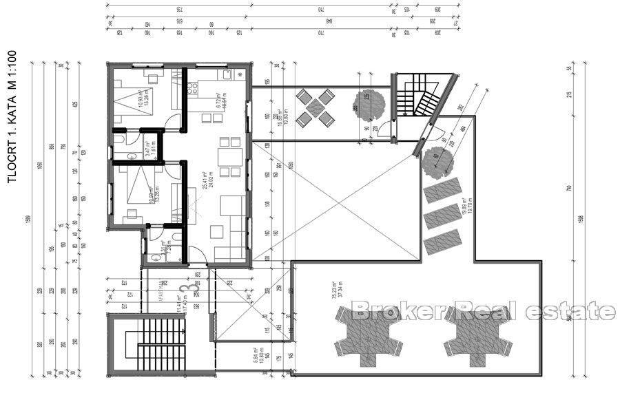
Velmi atraktivní stavební pozemek se stavebním povolením, pouhých 60 metrů od moře a krásných oblázkových pláží. Pozemek se nachází mezi Splitem a Omišem a jako takový je velmi atraktivní pro celoroční pobyt, ale i turistiku.
Pozemek se rozkládá na zhruba 600 m2 a má platné povolení na stavbu 256 m2. Vila se rozkládá na 2 podlažích, kde přízemí má 182 m2, zatímco horní patro má 73 m2, celkem 6 pokojů a 6 koupelen. Má také otevřené terasy, bazén a parkoviště pro 3 vozidla. Z vily se otevírá výhled na moře.
K nemovitosti vede příjezdová cesta a vedle je přípojka na elektřinu a vodu.
Umístění
Omis, Dalmátské pobřeží
Omiš je město a přístav v oblasti Dalmácie v Chorvatsku a obec ve Splitsko-dalmatské župě. Město leží přibližně 25 kilometrů jihovýchodně od druhého největšího chorvatského města Splitu, kde se řeka Cetina vlévá do Jaderského moře. Omiš byl v minulosti dobře známý jako pirátské město, jehož lodě byly stavěny pro útok a rychlý návrat do ústí řeky Cetiny.
Hledáte něco jiného?








