




Croatia, Dalmatia coast, Split city - Three bedroom apartment, by the sea, for sale
ID: 2019/105Basic information
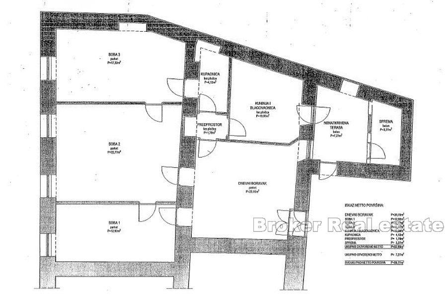
Living space:83 m2
Bedrooms:3
Bathrooms:1
Floors:1
Sea distance:20 m
Seafront
Property advantages
- Sea view
About the property
For sale is a three bedroom apartment in the center of Split near the riva, waterfront of Split. The apartment is of southern orientation and has a great view. It is located on the first floor of a building with high ceilings architecture.
The interior area of the apartment is 83m2 plus the north terrace with storage, 99m2 in total. The apartment consists of 6 rooms and a terrace with storage. The three rooms have excellent sea view.
Since only one central wall is load-bearing, others can be demolished and arranged as desired.
Great apartment in a prime location on the first floor of a building with high ceilings.
An excellent choice for both tourist rentals and living in the center of Split.
Location
Split city, Dalmatia coast
Split is the second-largest city of Croatia after the capital Zagreb, the largest city in Dalmatia and the largest city on the Croatian coast. It lies on the eastern shore of the Adriatic Sea and is spread over a central peninsula and its surroundings. An intraregional transport hub and popular tourist destination, the city is linked to the Adriatic islands and the Apennine Peninsula.
Are you looking for something else?







