




Chorwacja, Dalmacja wybrzeże, Split miasto - Trzypokojowy apartament nad morzem na sprzedaż
ID: 2019/105Podstawowe informacje
Przestrzeń życiowa:83 m2
Sypialnie:3
Łazienki:1
Podłogi:1
Odległość morska:20 m
Wybrzeże
Zalety nieruchomości
- Widok morza
O nieruchomości
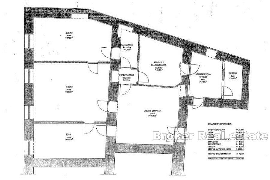
Na sprzedaż jest apartament z trzema sypialniami w centrum Splitu, niedaleko Rivy, nabrzeża Splitu. Mieszkanie ma orientację południową i ma wspaniały widok. Znajduje się na pierwszym piętrze budynku o architekturze z wysokimi sufitami.
Powierzchnia wewnętrzna mieszkania wynosi 83 m2 plus północny taras z miejscem do przechowywania, w sumie 99 m2. Mieszkanie składa się z 6 pokoi i tarasu ze schowkiem. Trzy pokoje mają doskonały widok na morze.
Ponieważ tylko jedna ściana środkowa jest nośna, inne mogą zostać zburzone i ustawione według potrzeb.
Świetne mieszkanie w doskonałej lokalizacji na pierwszym piętrze budynku z wysokimi sufitami.
Doskonały wybór zarówno dla turystów, jak i osób mieszkających w centrum Splitu.
Lokalizacja
Split miasto, Dalmacja wybrzeże
Split to drugie co do wielkości miasto Chorwacji po stolicy Zagrzebiu, największe miasto w Dalmacji i największe miasto na chorwackim wybrzeżu. Leży na wschodnim brzegu Morza Adriatyckiego i rozciąga się na środkowym półwyspie i jego okolicach. Miasto, będące wewnątrzregionalnym węzłem komunikacyjnym i popularnym kierunkiem turystycznym, ma połączenie z wyspami adriatyckimi i Półwyspem Apenińskim.
Szukasz czegoś innego?







