




Chorvatsko, Dalmátské pobřeží, Split město - Byt 3 + 1, u moře, na prodej
ID: 2019/105Základní informace
Obytný prostor:83 m2
Ložnice:3
Koupelny:1
Podlahy:1
Vzdálenost moře:20 m
Nábřeží
Výhody nemovitosti
- Výhled na moře
O nemovitosti
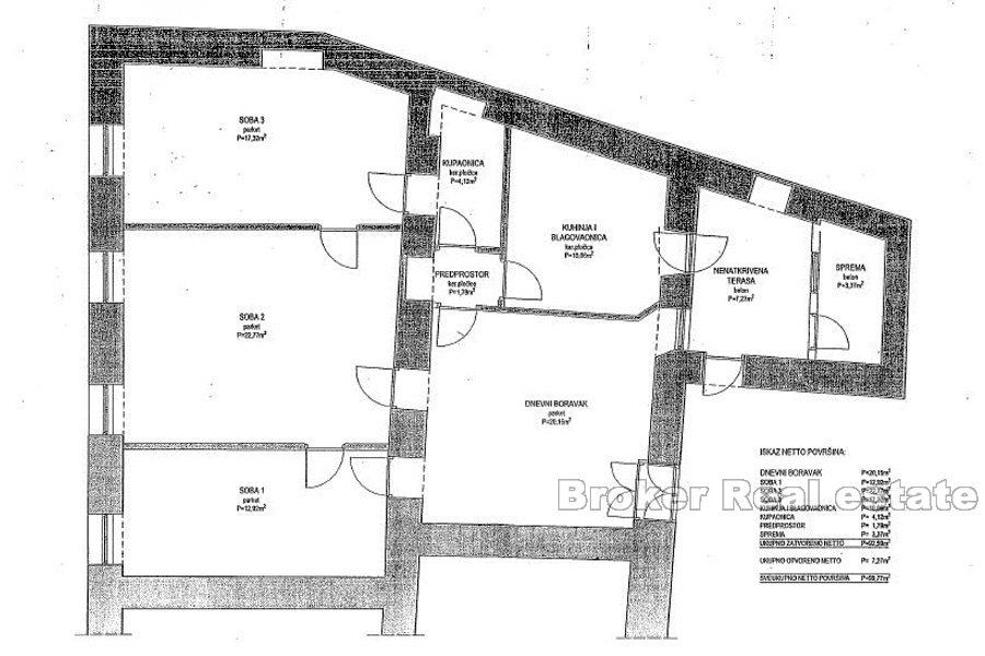
Na prodej je byt 3 + 1 v centru Splitu nedaleko města Riva, nábřeží Splitu. Byt je jižní orientace a má nádherný výhled. Nachází se v prvním patře budovy s vysokou stropní architekturou.
Vnitřní plocha bytu je 83m2 plus severní terasa s úložným prostorem, celkem 99m2. Byt se skládá ze 6 pokojů a terasy s úložným prostorem. Všechny tři pokoje mají vynikající výhled na moře.
Protože je nosná pouze jedna střední stěna, lze ostatní demolovat a uspořádat podle potřeby.
Skvělý byt na skvělém místě v prvním patře budovy s vysokými stropy.
Vynikající volba jak pro turistické nájemné, tak pro bydlení v centru Splitu.
Umístění
Split město, Dalmátské pobřeží
Split je po hlavním městě Záhřebu druhé největší město Chorvatska, největší město v Dalmácii a největší město na chorvatském pobřeží. Leží na východním pobřeží Jaderského moře a rozkládá se na centrálním poloostrově a jeho okolí. Vnitroregionální dopravní uzel a oblíbená turistická destinace, město je spojeno s jadranskými ostrovy a Apeninským poloostrovem.
Hledáte něco jiného?







