





Croatia, Dalmatia coast, Zadar area - Apartments in the first row to the sea
ID: 2022/336Basic information
Living space:130 m2
Land space:34 m2
Bedrooms:3
Bathrooms:2
Sea distance:10 m
Seafront
Property advantages
- Sea view
- Newly built
Amenities
- Energy Certificate
- Modern
- Parking
About the property
Apartments in the first row to the sea located in a small town near Zadar.
On a plot of 722m2 is a newly built residential building that spreads over three floors – ground floor and two floors.
The apartments are located on the first and second floor of the building.
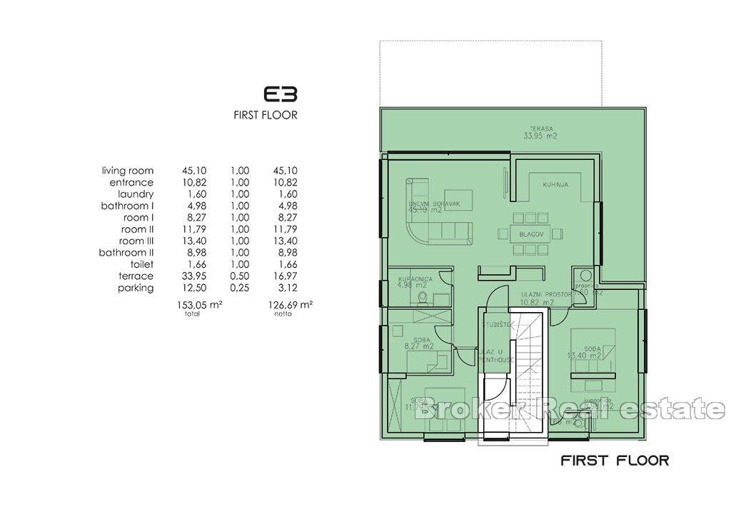
The apartment on the first floor of 130m2 consists of a kitchen with dining room and living room, one bathroom and three bedrooms, one of which has a bathroom.
From the living room there is access to a covered terrace of approximately 34m2 which provides an impressive open sea view. The apartment has one parking space.
The apartment on the second floor of 220m2 consists of an open concept kitchen, dining room and living room with access to a covered terrace, one bathroom, toilet, pantry and
three bedrooms, one of which has an attached bathroom. This apartment has a rooftop terrace with a jacuzzi and a summer kitchen that offers the perfect place to stay in the warmer months.
The apartment has one parking space.
Excellent macro location, proximity to the city of Zadar and the airport and the immediate vicinity of Croatian national parks and nature parks make this property an ideal place for housing or tourism business.
Location
Zadar area, Dalmatia coast
The Zadar area is located in such a way that it encompasses the northern Dalmatian coast and the coastal areas of Ravni Kotari, Bukovica, Pozrmanja and South Lika. The coastal area covers a wide strip from the town of Biograd na Moru to the Velebit mountain. The inland coastal area consists of the vast, flat area of Ravni Kotari. The whole area is well connected by a modern highway.
Are you looking for something else?









