





Hrvatska, Dalmacija obala, Zadar okolica - Apartmani u prvom redu do mora
ID: 2022/336Osnovni podaci
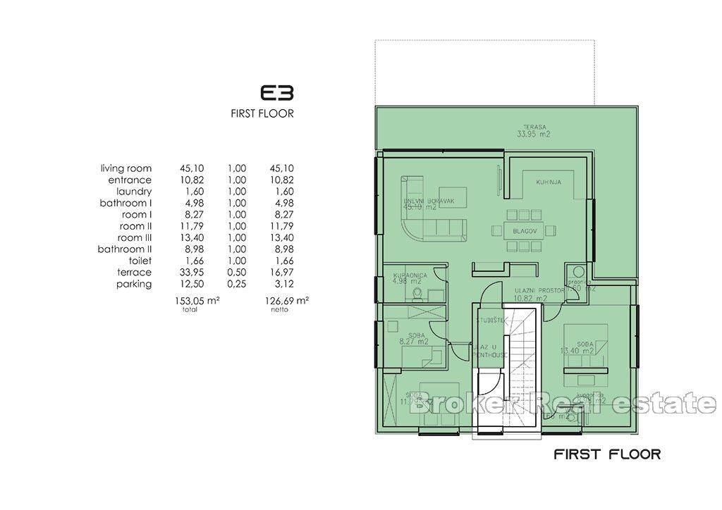
Stambeni prostor:130 m2
Zemljište:34 m2
Sobe:3
Kupaonice:2
Udaljenost od mora:10 m
Prvi red
Prednosti nekretnine
- Pogled na more
- Novogradnja
Pogodnosti
- Energetski certifikat
- Moderno
- Parking
O nekretnini
Apartmani u prvom redu do mora smješteni u malom mjestu pokraj Zadra.
Na zemljištu od 722m2 je položena novoizgrađena stambena zgrada koja se prostire na tri etaže – prizemlje i dva kata.
Apartmani se nalaze na prvom i drugom katu zgrade.
Apartman na prvom katu stambene površine 130m2 se sastoji od kuhinje s blagovaonicom i dnevnim boravkom, jedne kupaonice i tri spavaće sobe, od kojih jedna ima pripadajuću kupaonicu.
Iz dnevnog boravka je omogućen izlaz na natkrivenu terasu od cca 34m2 koja pruža impresivni otvoreni pogled na more. Apartman posjeduje jedno parkirno mjesto.
Apartman na drugom katu površine 220m2 se sastoji od otvorenog koncepta kuhinje, blagovaonice i dnevnog boravka s omogućenim izlazom na natkrivenu terasu, jedne kupaonice, toaleta, ostave i
tri spavaće sobe, od kojih jedna ima pripadajuću kupaonicu. Ovaj apartman ima krovnu terasu na kojoj se nalazi jacuzzi i ljetna kuhinja koja nudi savršeno mjesto za boravak u toplijim mjesecima.
Apartman posjeduje jedno parkirno mjesto.
Odlična makrolokacija, blizina grada Zadra i zračne luke te neposredna blizina hrvatskih nacionalnih parkova i parkova prirode čine ovu nekretninu idealnim mjestom za stambeno rješenje ili turističko poslovanje.
Lokacija
Zadar okolica, Dalmacija obala
Zadar okolica je položena tako da zahvaća primorje sjeverne Dalmacije te zaobalje Ravnih kotara, Bukovice, Pozrmanja i Južne Like. Obalno područje obuhvaća široki pojas od grada Biograd na Moru do planine Velebit. Kopneno zaobalje čini prostrani uravnjeni prostor Ravnih kotara. Cijelo područje je odlično cestovno povezano suvremenom autocestom.
Tražiš li nešto drugo?









