





Chorvatsko, Dalmátské pobřeží, Zadarská oblast - Apartmány v první řadě k moři
ID: 2022/336Základní informace
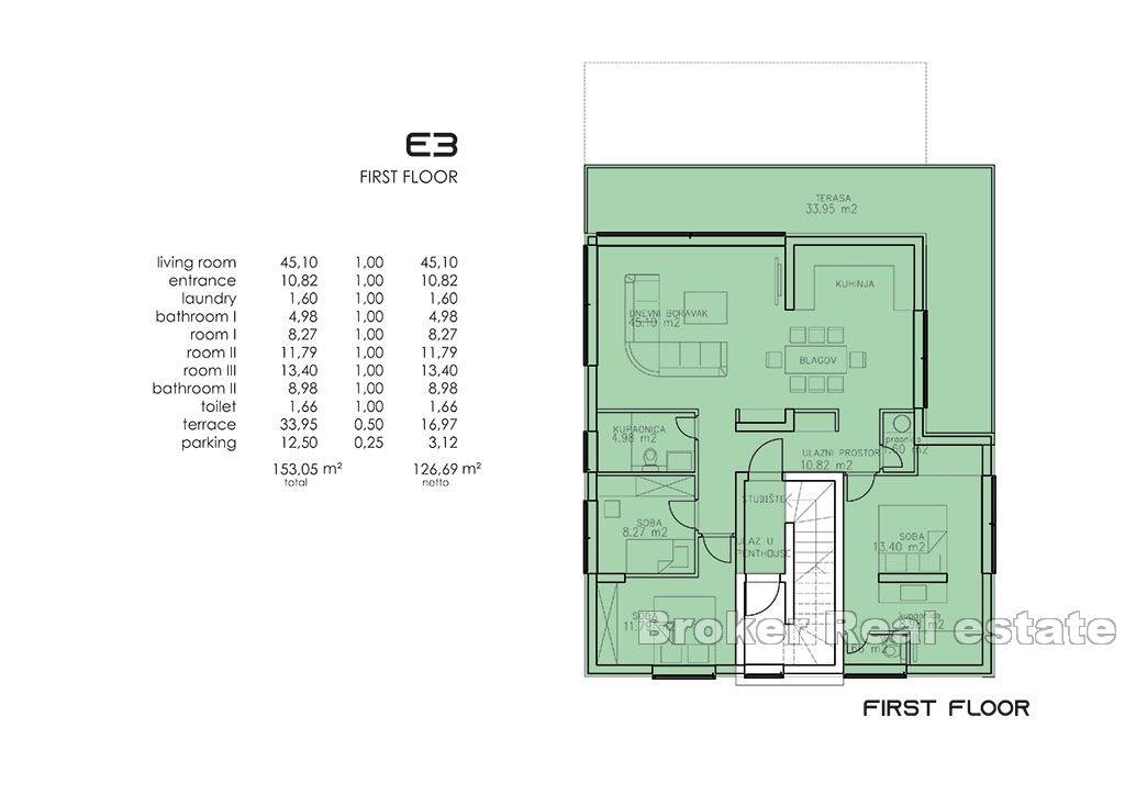
Obytný prostor:130 m2
Pozemní prostor:34 m2
Ložnice:3
Koupelny:2
Vzdálenost moře:10 m
Nábřeží
Výhody nemovitosti
- Výhled na moře
- Novostavby
Vybavení
- Energetický certifikát
- Moderní
- Parkoviště
O nemovitosti
Apartmány v první řadě u moře se nachází v malém městečku nedaleko Zadaru.
Na pozemku 722m2 je novostavba bytového domu, který se rozkládá na třech podlažích – přízemí a dvě podlaží.
Apartmány se nacházejí v prvním a druhém patře budovy.
Byt v prvním patře 130m2 se skládá z kuchyně s jídelnou a obývacím pokojem, jedné koupelny a tří ložnic, z nichž jedna má koupelnu.
Z obývacího pokoje je přístup na krytou terasu o velikosti cca 34 m2, která poskytuje působivý výhled na otevřené moře. K bytu náleží jedno parkovací stání.
Byt ve druhém patře 220m2 se skládá z otevřeného konceptu kuchyně, jídelny a obývacího pokoje se vstupem na krytou terasu, jedné koupelny, WC, komory a
tři ložnice, z nichž jedna má připojenou koupelnu. Tento apartmán má střešní terasu s jacuzzi a letní kuchyní, která nabízí ideální místo k pobytu v teplejších měsících.
K bytu náleží jedno parkovací stání.
Výborná makro poloha, blízkost města Zadar a letiště a bezprostřední blízkost chorvatských národních parků a přírodních parků činí z této nemovitosti ideální místo pro bydlení nebo podnikání v cestovním ruchu.
Umístění
Zadarská oblast, Dalmátské pobřeží
Zadarská oblast se rozkládá tak, že zahrnuje severodalmatské pobřeží a pobřežní oblasti Ravni Kotari, Bukovica, Pozrmanja a Jižní Lika. Pobřežní oblast zahrnuje široký pás od města Biograd na Moru až po pohoří Velebit. Vnitrozemskou pobřežní oblast tvoří rozsáhlá rovinatá oblast Ravni Kotari. Celá oblast je dobře propojena moderní dálnicí.
Hledáte něco jiného?









