




Kroatien, Dalmatiens öar, Ciovo - Lägenheter med två sovrum, vid havet, till salu
ID: 2014/638Basinformation
Boendeyta:60 m2
Sovrum:2
Badrum:2
Avstånd till havet:5 m
Strandnära
Fastighetsfördelar
- Havsutsikt
- Nyproduktion
Bekvämligheter
- Energicertifikat
- Parkering
Om fastigheten
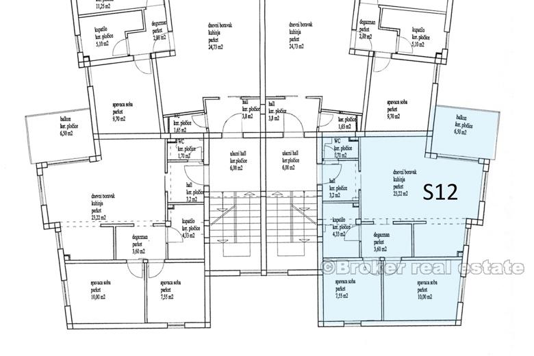
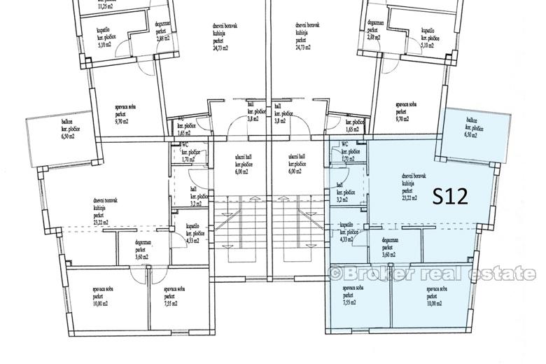
Lägenhet S 12; 2: a våningen; 60sqm; 2 sovrum
Lägenheten ligger på 2: a våningen, sydöstra sidan av byggnaden. Total yta med balkong är 60,08 m2. Den består av hall, badrum, kök, vardagsrum och matsal, landning, två sovrum, badrum och balkong. Lägenheten har havsutsikt Lägenheten är luftkonditionerad, har ett kök och är fullt möblerat, har också en parkeringsplats kl. 14-12.
Pris: 200 000 EUR
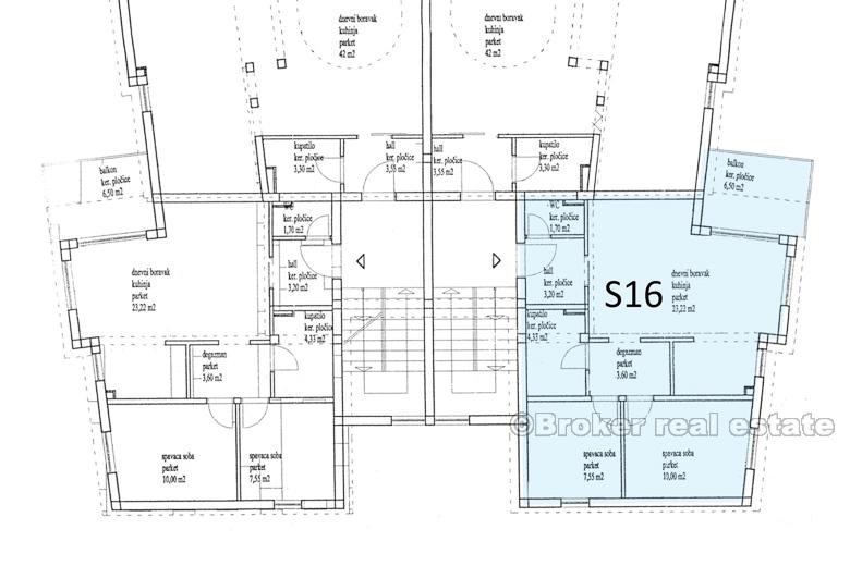
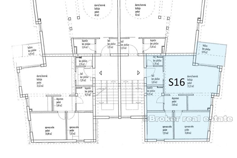
Lägenhet S-16; 3: e våningen; 60sqm; 2 sovrum
Lägenheten ligger på 3: e våningen, sydöstra sidan av byggnaden. Total yta med balkong är 60,08 m2. Den består av hall, badrum, kök, vardagsrum och matsal, landning, två sovrum, badrum och balkong. Lägenheten har havsutsikt. Lägenheten är luftkonditionerad, har ett kök och är fullt möblerad. Platsen har två ytterligare gallerier, har också en parkeringsplats pm-16.
Pris: 210 000 EUR
Plats
Ciovo, Dalmatiens öar
Čiovo ligger i centrala Dalmatien och skyddar staden Trogir och Kaštelabukten. På sin norra del är den ansluten till fastlandet med två broar, en bro är i den gamla stadskärnan i Trogir, och en del av Trogir breder ut sig på ön. Förutom delen av Trogir finns det flera byar på ön: Arbanija, Žedno, Okrug Gornji, Okrug Donji och Slatine.
Letar du efter något annat?






















