





Kroatien, Dalmatiens öar, Hvar - Restaurang i första raden mot havet
ID: 5226/30Basinformation
Boendeyta:203 m2
Sovrum:2
Badrum:1
Avstånd till havet:10 m
Strandnära
Fastighetsfördelar
- Havsutsikt
Bekvämligheter
- Energicertifikat
Om fastigheten
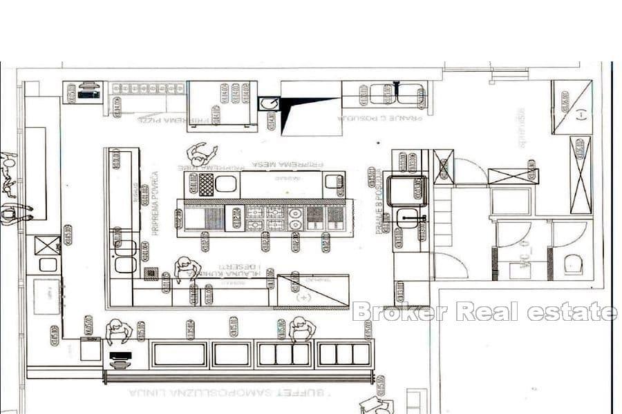
Restaurang med terrass som ligger i första raden mot havet på ön Hvar.
Ytan på restaurangen är 120 m2 medan terrassen är 83 m2 och ligger på bottenvåningen i en tvåvåningsbyggnad.
Den består av ett utrustat kök, en sittgrupp, en självbetjäningslinje med kylmontrar och ett badrum. På baksidan finns ytterligare lokaler avsedda för förvaring och för restaurangpersonalen.
Med tanke på det frekventa läget och innehavet av alla tillstånd för att börja arbeta är fastigheten en lönsam investeringsmöjlighet.
Det finns möjlighet till anslutning till det övre utrymmet som också finns till försäljning. Kommersiell yta på 432 m2, som idag används som nattklubb. Mer information under ref. nummer 5227/30.
Plats
Hvar, Dalmatiens öar
Hvar är en kroatisk ö i Adriatiska havet, belägen utanför den dalmatiska kusten, som ligger mellan öarna Brač, Vis och Korčula. Dess sluttningar är täckta av tallskogar, med vingårdar, olivlundar, fruktträdgårdar och lavendelfält i jordbruksområdena. Klimatet kännetecknas av milda vintrar och varma somrar med många soltimmar.
Letar du efter något annat?




