Såld

Såld





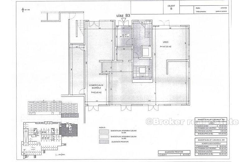
Kroatien, Dalmatiens kust, Split stad - Kontorsutrymmen för försäljning
ID: 2015/36Pris€220,000
ID: 2015/36
Basinformation
Boendeyta:150 m2
Bekvämligheter
- Energicertifikat
Om fastigheten
Commercial lade på bottenvåningen total yta på 150m2. Den är lämplig för olika ändamål.
Plats
Split stad, Dalmatiens kust
Split är den näst största staden i Kroatien efter huvudstaden Zagreb, den största staden i Dalmatien och den största staden på den kroatiska kusten. Den ligger på den östra stranden av Adriatiska havet och är spridd över en central halvö och dess omgivningar. Staden är ett intraregionalt transportnav och ett populärt turistmål, och är kopplad till de adriatiska öarna och Apenninhalvön.
Letar du efter något annat?






