




Kroatien, Dalmatiens kust, Split stad - Split 3 - Rymlig kontorsyta på frekvent plats
ID: 2030/54Basinformation
Boendeyta:517 m2
Badrum:4
Avstånd till havet:800 m
Om fastigheten
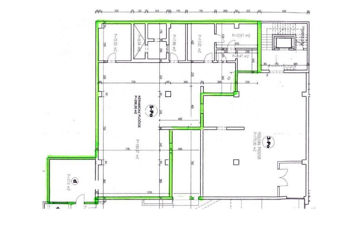
Rymlig kontorsyta för uthyrning, belägen på första våningen i en kontorsbyggnad, med en total yta på 517 m2.
Med tanke på ytor, igenkännlig och väl ansluten plats är detta utrymme ett idealiskt erbjudande som kontorsarbetsyta för ett stort antal anställda.
Ytan består av entrédel med utgång till balkong, kök, fyra sanitetsutrymmen, ett stort antal separata kontor, ett stort konferensrum och ett förråd.
Det finns en stor allmän parkeringsplats bakom byggnaden, och utrymmet är väl anslutet till stadens kollektivtrafiknät.
Alla nödvändiga faciliteter såsom butiker, restauranger, kaféer, högskolor, etc. finns i närheten.
Plats
Split stad, Dalmatiens kust
Split är den näst största staden i Kroatien efter huvudstaden Zagreb, den största staden i Dalmatien och den största staden på den kroatiska kusten. Den ligger på den östra stranden av Adriatiska havet och är spridd över en central halvö och dess omgivningar. Staden är ett intraregionalt transportnav och ett populärt turistmål, och är kopplad till de adriatiska öarna och Apenninhalvön.
Letar du efter något annat?


























