





Kroatien, Dalmatiens kust, Zadar stad - Takvåning med havsutsikt
ID: 2043/54Basinformation
Boendeyta:117 m2
Markutrymme:524 m2
Sovrum:3
Badrum:2
Golv:3
Avstånd till havet:40 m
Fastighetsfördelar
- Havsutsikt
- Nyproduktion
Bekvämligheter
- Energicertifikat
- Garage
- Parkering
Om fastigheten
Lägenhet med takterrass i nybyggnad.
Bostadshuset där lägenheten ligger ligger i andra raden mot havet med direkt tillgång till stranden.
Byggnaden sträcker sig över tre våningar som utgör bottenvåningen, första och andra våningen. Det finns tre lägenheter i tre våningar vilket gör denna fastighet till ett mindre och mer privat bostadshus. Varje lägenhet har två parkeringsplatser som ingår i priset, som kan nås från norra och södra sidan, det vill säga från huvudvägen och från havet.
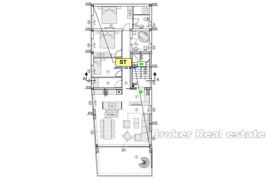
Det är en trerumslägenhet med en beräknad ytarea på 117 m2, medan den användbara ytor med takterrass blir drygt 200 m2. Lägenheten har ett öppet utrymmeskoncept och består av 3 sovrum, två badrum, kök, matsal och vardagsrum. Stora glasskjutväggar placerade i gemensamma utrymmen ger en utmärkt utsikt från fastigheten och utgång till balkong. Lägenheten har tillgång till takterrassen via en spiraltrappa från balkongen, vilket också är ett extra inslag i fastigheten. Det är en terrass på över 70 m2 med alla nödvändiga vatten-, avlopps- och elinstallationer. Terrassen har sommarkök, sommardusch och jacuzzi.
Fastighetens utmärkta makroläge är inte det enda som gör denna fastighet attraktiv, utan också det faktum att det är en ny byggnad med alla nödvändiga faciliteter i närheten. Fastighetens mikroläge garanterar en säker semester eller liv tack vare närheten till havet och stranden, affärer, anslutning till huvudvägen, flygplatsen och Zadars centrum.
Du kan se utbudet av andra lägenheter från samma byggnad under referensnummer 2043/53.
Plats
Zadar stad, Dalmatiens kust
Zadar är den äldsta kontinuerligt bebodda staden i Kroatien. Det ligger vid Adriatiska havet, i den nordvästra delen av Ravni Kotari-regionen. På grund av sitt rika arv är Zadar idag en av de mest populära kroatiska turistdestinationerna, utnämnd till "nöjescentrum vid Adriatiska havet" av The Times och "Kroatiens nya coola huvudstad" av The Guardian.
Letar du efter något annat?










