





Kroatien, Dalmatiens öar, Ciovo - Modern tvårumslägenhet med havsutsikt
ID: 2035/266Basinformation
Boendeyta:55 m2
Markutrymme:15 m2
Sovrum:2
Badrum:2
Golv:1
Avstånd till havet:130 m
Fastighetsfördelar
- Havsutsikt
- Nyproduktion
- Lyxigt
Bekvämligheter
- Energicertifikat
- Garage
- Moderna
Om fastigheten
Till salu finns en rymlig och ljus tvårumslägenhet, belägen inte långt från havet på södra sidan av ön Čiovo, en av de mest eftertraktade semester- och bostadsdestinationerna i centrala Dalmatien. Denna fastighet ligger på första våningen i ett modernt bostadshus, omgivet av liknande kvalitetsfastigheter i ett lugnt och välskött område.
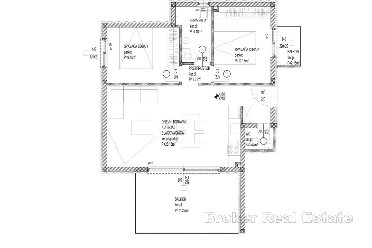
Lägenheten är orienterad mot sydväst, vilket ger den gott om naturligt ljus hela dagen, och dess totala yta är 54,70 m². Planlösningen består av en hall, badrum, toalett, två bekväma sovrum, samt ett öppet utrymme som kombinerar kök, matsal och vardagsrum – perfekt för vardagsliv och avkoppling. Vardagsrummet och sovrummet leder ut till balkonger på 16,40 m².
Lägenheten säljs omöblerad, vilket ger den framtida ägaren möjlighet att inreda interiören efter egna önskemål och stil. Det är också möjligt att välja kakel och sanitära element efter eget val. Tre luftkonditioneringsapparater säkerställer en behaglig temperatur året runt, samt golvvärme i hela lägenheten, vilket ytterligare ökar komfortnivån. Ytterligare utrustning inkluderar säkerhetsdörrar, elektriska rulljalusier, myggnät, videoövervakning… Lägenheten har också en utomhusparkeringsplats bredvid byggnaden, vilket är en extra bekvämlighet.
Tack vare sitt utmärkta mikroläge har denna fastighet enorm potential för turistuthyrning. Alla viktiga bekvämligheter finns i närheten – butiker, restauranger, stränder, samt Splits flygplats, som bara ligger 8,5 km bort. Denna fastighet representerar den perfekta kombinationen av en lugn medelhavslivsstil och en utmärkt investeringsmöjlighet. Den är idealisk för året runt-boende, såväl som för en lyxig semester eller uthyrning.
Plats
Ciovo, Dalmatiens öar
Čiovo ligger i centrala Dalmatien och skyddar staden Trogir och Kaštelabukten. På sin norra del är den ansluten till fastlandet med två broar, en bro är i den gamla stadskärnan i Trogir, och en del av Trogir breder ut sig på ön. Förutom delen av Trogir finns det flera byar på ön: Arbanija, Žedno, Okrug Gornji, Okrug Donji och Slatine.
Letar du efter något annat?










