





Chorwacja, Dalmacja Wyspy, Ciovo - Nowoczesny apartament z dwiema sypialniami i widokiem na morze
ID: 2035/266Podstawowe informacje
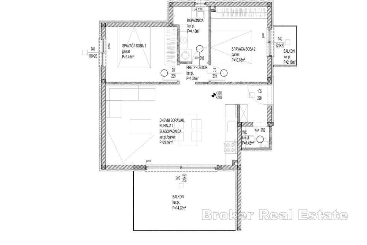
Przestrzeń życiowa:55 m2
Przestrzeń lądowa:15 m2
Sypialnie:2
Łazienki:2
Podłogi:1
Odległość morska:130 m
Zalety nieruchomości
- Luksusowa
- Nowoczesna
- Widok morza
Udogodnienia
- Certyfikat Energetyczny
- Garaż
- Nowy build
O nieruchomości
Na sprzedaż przestronny i jasny apartament z dwiema sypialniami, położony niedaleko morza, w południowej części wyspy Čiovo, jednego z najpopularniejszych miejsc wypoczynkowych i mieszkalnych w środkowej Dalmacji. Nieruchomość znajduje się na pierwszym piętrze nowoczesnego budynku mieszkalnego, w otoczeniu podobnych, wysokiej jakości nieruchomości, w spokojnej i zadbanej okolicy.
Apartament jest zorientowany na południowy zachód, co zapewnia mu dużo naturalnego światła przez cały dzień, a jego powierzchnia całkowita wynosi 54,70 m². Układ mieszkania obejmuje przedpokój, łazienkę, toaletę, dwie wygodne sypialnie oraz otwartą przestrzeń łączącą kuchnię, jadalnię i salon – idealną do codziennego życia i relaksu. Z salonu i sypialni prowadzą wyjścia na balkony o powierzchni 16,40 m².
Apartament jest sprzedawany bez mebli, co daje przyszłemu właścicielowi możliwość aranżacji wnętrza według własnych upodobań i stylu. Istnieje również możliwość wyboru płytek i elementów sanitarnych. Trzy klimatyzatory zapewniają przyjemną temperaturę przez cały rok, a ogrzewanie podłogowe w całym apartamencie dodatkowo podnosi poziom komfortu. Dodatkowe wyposażenie obejmuje drzwi antywłamaniowe, rolety elektryczne, moskitiery, monitoring… Do apartamentu przynależy również jedno miejsce parkingowe na zewnątrz, zlokalizowane tuż przy budynku, co stanowi dodatkowe udogodnienie.
Dzięki doskonałej mikrolokalizacji, nieruchomość ta ma ogromny potencjał pod wynajem turystyczny. W pobliżu znajdują się wszystkie kluczowe udogodnienia – sklepy, restauracje, plaże, a także lotnisko w Splicie, oddalone o zaledwie 8,5 km. Nieruchomość ta stanowi idealne połączenie spokojnego śródziemnomorskiego stylu życia z doskonałą okazją inwestycyjną. Idealnie nadaje się do całorocznego zamieszkania, a także na luksusowe wakacje lub wynajem.
Lokalizacja
Ciovo, Dalmacja Wyspy
Čiovo położone jest w środkowej Dalmacji, chroniąc miasto Trogir i zatokę Kaštela. W północnej części jest połączony z lądem dwoma mostami, jeden most znajduje się w starym centrum Trogiru, a część Trogiru rozciąga się na wyspę. Oprócz części Trogiru, na wyspie znajduje się kilka wiosek: Arbanija, Žedno, Okrug Gornji, Okrug Donji i Slatine.
Szukasz czegoś innego?










