





Kroatien, Dalmatiens öar, Mljet - Hus första raden till havet
ID: 2021/336Basinformation
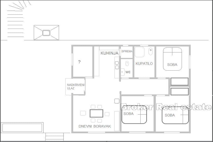
Boendeyta:96 m2
Markutrymme:3500 m2
Sovrum:3
Badrum:2
Golv:1
Avstånd till havet:5 m
Strandnära
Fastighetsfördelar
- Havsutsikt
Bekvämligheter
- Energicertifikat
- Parkering
Om fastigheten
Ön Mljet, hus första raden till havet.
Huset ligger i ett attraktivt läge vid havet. Utan väg eller väg framför dig, med en egen praktiskt taget privat strand där det även finns en båtplats. Huset är enplans, oavslutat, infrastruktur utrustad med el och vatten, det har för närvarande en beboelig 1 våning med en planyta på 96m2.
Huset tillhör mark med en total yta på 3500m2, som är uppdelad i den första raden till havet där själva huset ligger, och den andra raden omedelbart ovanför huset.
Mljet är den mest skogklädda kroatiska ön, en nationalpark, en mystikens ö, där du sällan kan hitta fastigheter att köpa, och ännu mer sällan ett hus på ett attraktivt läge i första raden mot havet.
Ön är ansluten med färja till halvön Pelješac, som ligger 40 minuters bilresa från den första motorvägskorsningen, eller en timmes bilresa till flygplatsen i Dubrovnik.
Plats
Mljet, Dalmatiens öar
Mljet är den sydligaste och östligaste av de större öarna i Dalmatien-regionen i Kroatien. Nationalparken omfattar den västra delen av ön, Veliko jezero, Malo jezero, Soline Bay och ett havsbälte 500 meter brett från den mest framstående udden av Mljet som täcker en yta på 54 km2. Mljet ligger söder om Pelješac-halvön, från vilken den delas av Mljetkanalen.
Liknande fastigheter
Letar du efter något annat?







