





Croazia, Isole Dalmazia, Mljet - Casa prima fila al mare
ID: 2021/336Informazioni di base
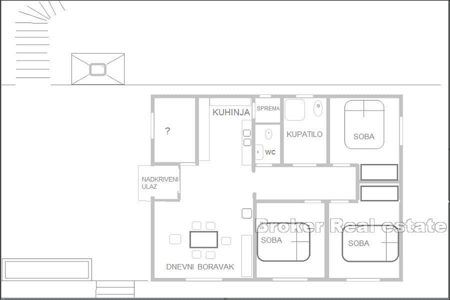
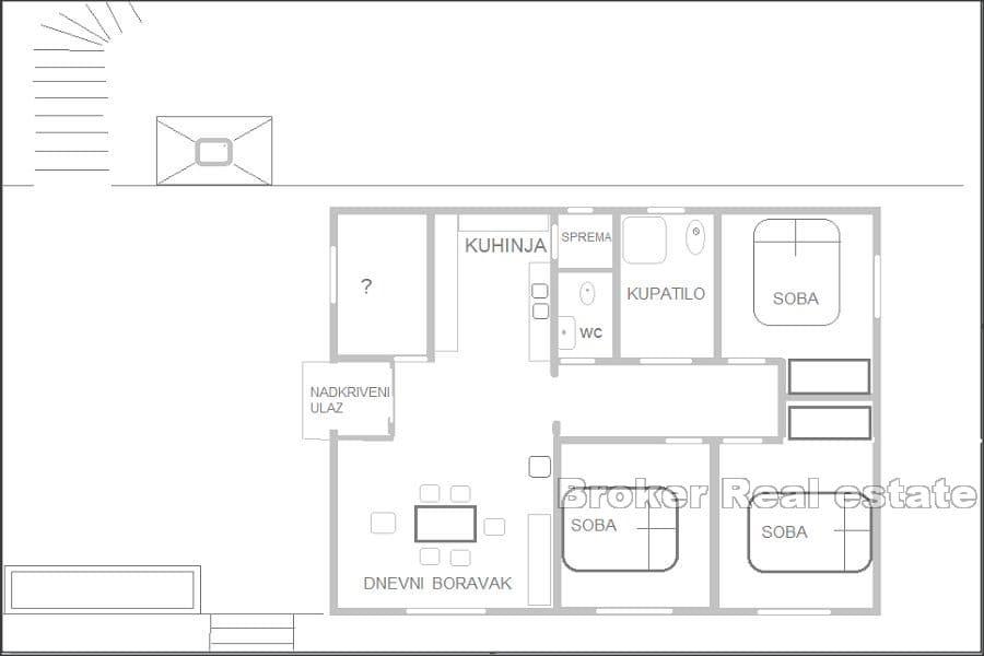
Spazio vitale:96 m2
Spazio terrestre:3500 m2
Camere da letto:3
Bagni:2
Piani:1
Distanza dal mare:5 m
Lungomare
Vantaggi della proprietà
- Vista sul mare
Dotazioni
- Certificato energetico
- Parcheggio
Sulla proprietà
L’isola di Mljet, casa prima fila al mare.
La casa si trova in una bella posizione vicino al mare. Senza strada o strada davanti, con la tua spiaggia praticamente privata dove c’è anche un attracco per una barca. La casa è a un piano, al grezzo, infrastruttura dotata di elettricità e acqua, attualmente ha un piano abitabile di 1 piano con una superficie planimetrica di 96 mq.
La casa appartiene a un terreno con una superficie totale di 3500 mq, suddiviso in prima fila verso il mare dove si trova la casa stessa e seconda fila immediatamente sopra la casa.
Mljet è l’isola croata più boscosa, un parco nazionale, un’isola di misticismo, dove raramente si trovano immobili da acquistare, e ancora più raramente una casa in una posizione attraente in prima fila sul mare.
L’isola è collegata con il traghetto alla penisola di Pelješac, che si trova a 40 minuti di macchina dal primo svincolo autostradale, oa un’ora di macchina dall’aeroporto di Dubrovnik.
Posizione
Mljet, Isole Dalmazia
Mljet è la più meridionale e la più orientale delle isole più grandi della Dalmazia, in Croazia. Il Parco Nazionale comprende la parte occidentale dell'isola, Veliko jezero, Malo jezero, la baia di Soline e una cintura marina larga 500 metri dal promontorio più prominente di Mljet che copre un'area di 54 km2. Mljet si trova a sud della penisola di Pelješac, da cui è divisa dal canale di Mljet.
Stai cercando qualcos'altro?







