




Kroatien, Dalmatiens kust, Primosten - Exceptionell lägenhet med havsutsikt i ny byggnad
ID: 2046/79Basinformation
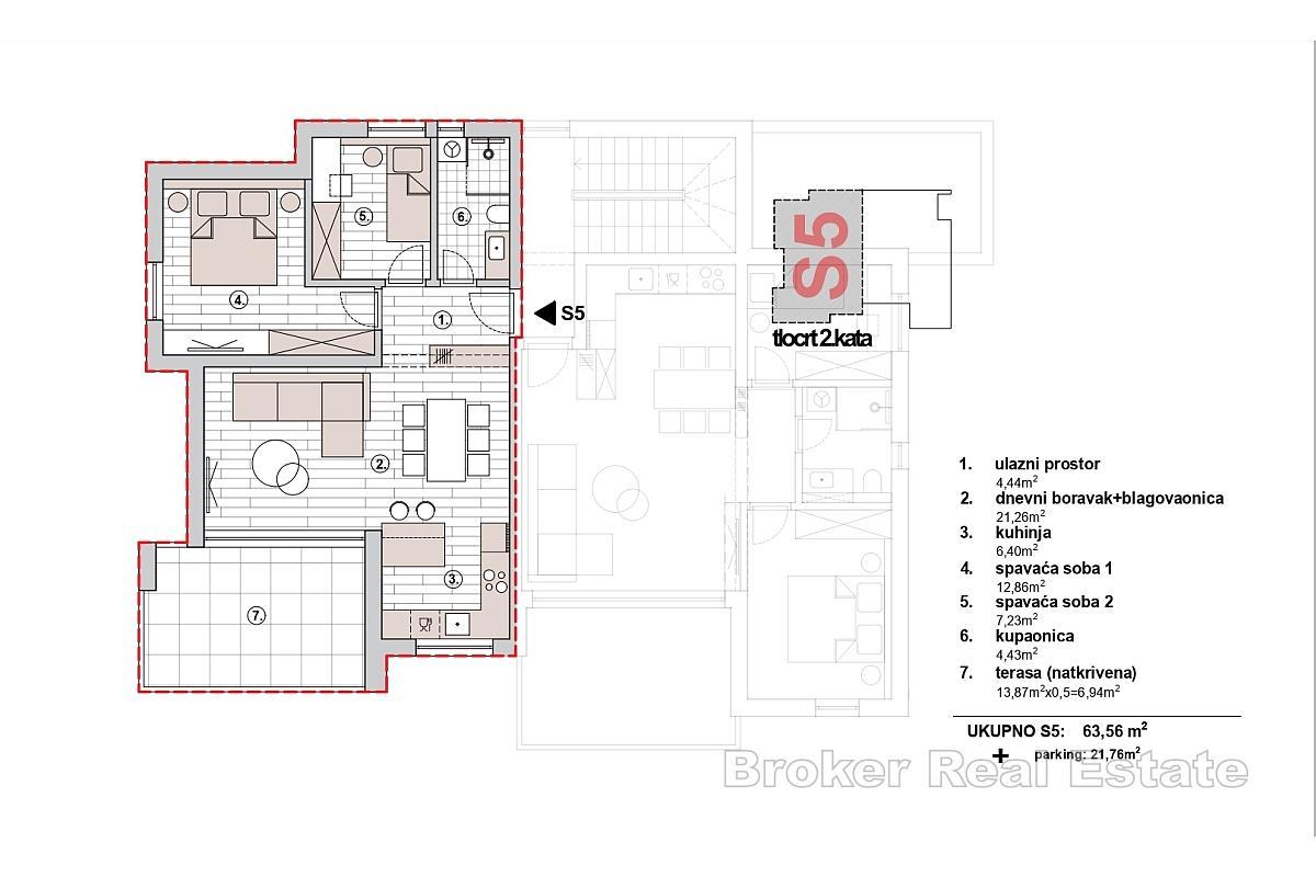
Boendeyta:74 m2
Sovrum:2
Badrum:1
Golv:1
Avstånd till havet:1200 m
Fastighetsfördelar
- Havsutsikt
- Nyproduktion
- Lyxigt
Bekvämligheter
- Energicertifikat
- Garage
- Moderna
- Parkering
Om fastigheten
En exceptionell tvårumslägenhet belägen på andra våningen i ett bostadshus med totalt sju lägenheter, fördelade på fyra våningar. Denna exceptionella lägenhet täcker 74,45 m2 boyta, och lägenheten inkluderar även en loggia som är delvis täckt och sträcker sig till 13,87 m2.
Lägenhetens interiör består av en entréhall, ett modernt badrum, två sovrum, ett kök och ett öppet vardagsrum med matplats. Från vardagsrummet finns en balkong med utsikt över havet och staden.
Lägenheten inkluderar ett garage utrustat med laddstation för elbilar, vilket bidrar till en modern livsstil. Högkvalitativa material har använts i konstruktionen, vilket säkerställer högsta komfort och hållbarhet. För komfort och säkerhet under din vistelse i fastigheten finns golvvärme i hela fastigheten, särskilt i badrum och vardagsrum, säkerhetsdörrar, elektriska jalusier, duschkabiner… Avståndet mellan fastigheten och alla nödvändiga faciliteter för vardagen är bara några minuter.
Arbetet är planerat att vara klart vintern 2026.
Plats
Primosten, Dalmatiens kust
Primošten är en by och kommun i Šibenik-Knins län, Kroatien. Det ligger i söder, mellan städerna Šibenik och Trogir, vid Adriatiska kusten. Primošten är känt för sina enorma och vackra vingårdar. Den största stranden i Primošten heter Raduča, och dess mindre del, Mala Raduča, är framröstad som en av de 10 vackraste stränderna i Kroatien.
Letar du efter något annat?


















