





Croazia, Costa Dalmazia, Primosten - Eccezionale appartamento con vista mare in un nuovo edificio
ID: 2046/79Informazioni di base
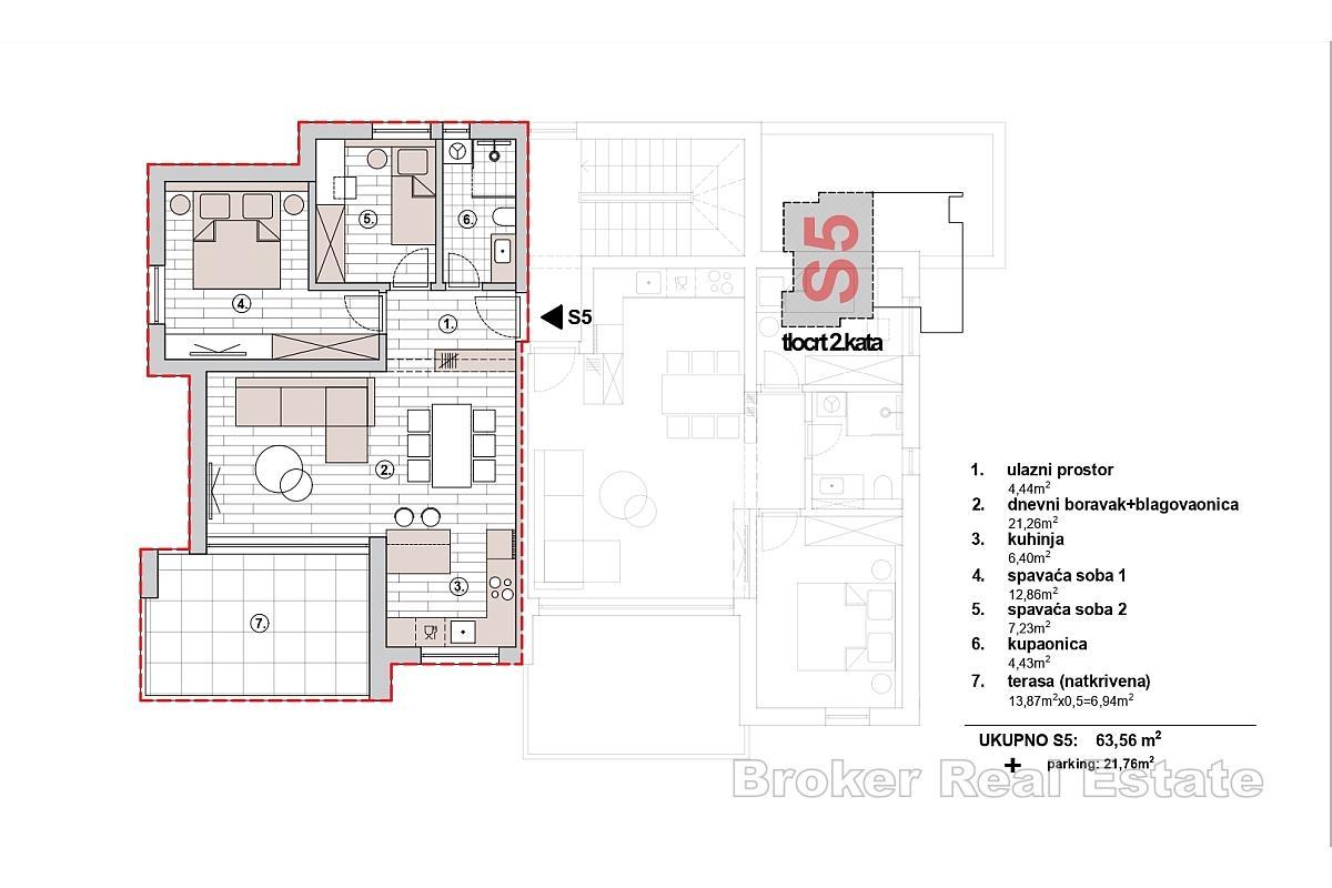
Spazio vitale:74 m2
Camere da letto:2
Bagni:1
Piani:1
Distanza dal mare:1200 m
Vantaggi della proprietà
- Vista sul mare
- Nuova costruzione
- Di lusso
Dotazioni
- Certificato energetico
- Garage
- Moderna
- Parcheggio
Sulla proprietà
Un eccezionale appartamento con due camere da letto situato al secondo piano di un edificio residenziale con un totale di sette appartamenti, distribuiti su quattro piani. Questo eccezionale appartamento si estende su 74,45 m2 di superficie abitabile e comprende anche una loggia parzialmente coperta che si estende per 13,87 m2.
L’interno dell’appartamento è composto da un ingresso, un bagno moderno, due camere da letto, una cucina e un soggiorno open space con zona pranzo. Dal soggiorno si accede ad una loggia con vista sul mare e sulla città.
L’appartamento comprende un garage dotato di stazione di ricarica per veicoli elettrici, che contribuisce a uno stile di vita moderno. Nella costruzione sono stati utilizzati materiali di alta qualità, che garantiscono il massimo comfort e durata. Per garantire comfort e sicurezza durante il vostro soggiorno nella proprietà, l’intera struttura è dotata di riscaldamento a pavimento, in particolare nel bagno e nella zona giorno, porte blindate, tapparelle elettriche, docce walk-in… La distanza tra la proprietà e tutti i servizi necessari per la vita quotidiana è di soli pochi minuti.
Il completamento dei lavori è previsto per l’inverno 2026.
Posizione
Primosten, Costa Dalmazia
Primošten è un villaggio e comune nella contea di Sebenico e Tenin, in Croazia. Si trova nel sud, tra le città di Sebenico e Trogir, sulla costa adriatica. Primošten è famosa per i suoi enormi e bellissimi vigneti. La spiaggia più grande di Primošten si chiama Raduča, mentre la sua parte più piccola, Mala Raduča, è votata come una delle 10 spiagge più belle della Croazia.
Stai cercando qualcos'altro?









