





Kroatien, Dalmatiens kust, Primosten - Modern lägenhet med havsutsikt i en ny byggnad
ID: 2046/80Basinformation
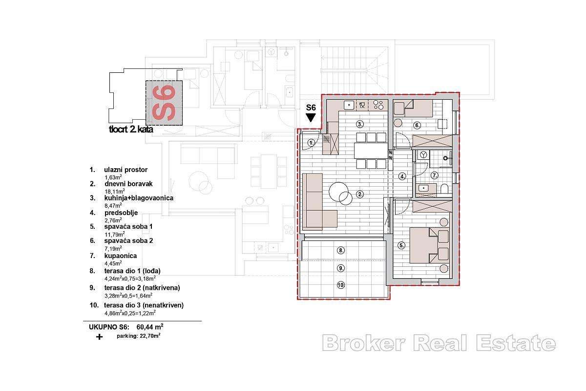
Boendeyta:72 m2
Sovrum:2
Badrum:1
Golv:1
Avstånd till havet:1200 m
Fastighetsfördelar
- Havsutsikt
- Nyproduktion
- Lyxigt
Bekvämligheter
- Energicertifikat
- Garage
- Moderna
- Parkering
Om fastigheten
En modern tvårumslägenhet belägen på andra våningen i ett bostadshus med totalt sju lägenheter fördelade på fyra våningar. Denna moderna lägenhet omfattar 71,79 m2 boyta, och lägenheten har även en loggia som är delvis täckt och sträcker sig till 12,38 m2.
Interiören i lägenheten består av en hall som leder till ett öppet utrymme där det finns en matsal och vardagsrum, kök, moderna badrum och två sovrum. Från vardagsrummet finns en balkong med utsikt över havet och staden.
Till lägenheten hör en garageplats utrustad med laddstation för elfordon, vilket möjliggör en modern livsstil. Högkvalitativa material användes i konstruktionen, vilket säkerställer en högsta nivå av komfort.
Den nya byggnaden utmärker sig för sin lyxiga och moderna design, samtidigt som det för komfort och säkerhet under din vistelse i fastigheten tillhandahålls golvvärme i hela fastigheten, nämligen badrummet och vardagsrummet, säkerhetsdörrar, elektriska fönsterluckor, duschkabiner… Avståndet mellan fastigheten och alla nödvändiga bekvämligheter för vardagen är bara några minuter.
Slutförandet av arbetena är planerat till vintern 2026.
Plats
Primosten, Dalmatiens kust
Primošten är en by och kommun i Šibenik-Knins län, Kroatien. Det ligger i söder, mellan städerna Šibenik och Trogir, vid Adriatiska kusten. Primošten är känt för sina enorma och vackra vingårdar. Den största stranden i Primošten heter Raduča, och dess mindre del, Mala Raduča, är framröstad som en av de 10 vackraste stränderna i Kroatien.
Letar du efter något annat?









