





Chorwacja, Dalmacja wybrzeże, Primosten - Nowoczesny apartament z widokiem na morze w nowym budynku
ID: 2046/80Podstawowe informacje
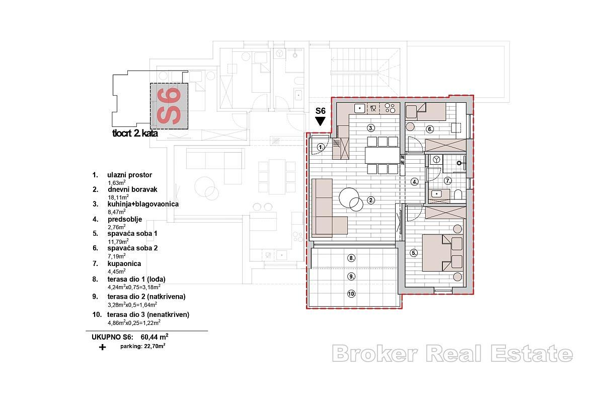
Przestrzeń życiowa:72 m2
Sypialnie:2
Łazienki:1
Podłogi:1
Odległość morska:1200 m
Zalety nieruchomości
- Luksusowa
- Nowoczesna
- Widok morza
Udogodnienia
- Certyfikat Energetyczny
- Garaż
- Nowy build
- Parking
O nieruchomości
Nowoczesne mieszkanie z dwiema sypialniami, położone na drugim piętrze budynku mieszkalnego składającego się z siedmiu mieszkań, rozłożonych na czterech piętrach. Ten nowoczesny apartament ma powierzchnię mieszkalną 71,79 m2. Do apartamentu przynależy również częściowo zadaszona loggia o powierzchni 12,38 m2.
Wnętrze apartamentu składa się z przedpokoju, który prowadzi do otwartej przestrzeni, w której znajduje się jadalnia i salon, kuchnia, nowoczesne łazienki i dwie sypialnie. Z salonu wyjście na balkon z widokiem na morze i miasto.
Do apartamentu przynależy miejsce garażowe wyposażone w stację ładowania samochodów elektrycznych, co umożliwia nowoczesny styl życia. Do budowy wykorzystano materiały najwyższej jakości, co gwarantuje najwyższy poziom komfortu.
Nowy budynek wyróżnia się luksusowym i nowoczesnym designem, a dla zapewnienia komfortu i bezpieczeństwa podczas pobytu w obiekcie zastosowano ogrzewanie podłogowe w całej nieruchomości, a mianowicie w łazience i części dziennej, drzwi antywłamaniowe, rolety elektryczne, kabiny prysznicowe… Odległość między obiektem a wszystkimi niezbędnymi udogodnieniami do codziennego życia wynosi zaledwie kilka minut.
Zakończenie prac planowane jest na zimę 2026 roku.
Lokalizacja
Primosten, Dalmacja wybrzeże
Primošten – wieś i gmina w Chorwacji, w powiecie szybenicko-knińskim. Leży na południu, pomiędzy miastami Szybenik i Trogir, na wybrzeżu Adriatyku. Primošten słynie z ogromnych i pięknych winnic. Największa plaża w Primošten nazywa się Raduča, a jej mniejsza część, Mala Raduča, uznawana jest za jedną z 10 najpiękniejszych plaż w Chorwacji.
Szukasz czegoś innego?









