





Kroatien, Dalmatiens kust, Split område, Podstrana - Attraktiv 3-sovrumslägenhet, Podstrana, till salu
ID: 2019/83Basinformation
Boendeyta:115 m2
Sovrum:3
Badrum:2
Golv:2
Fastighetsfördelar
- Havsutsikt
Bekvämligheter
- Energicertifikat
- Garage
- Moderna
- Parkering
Om fastigheten
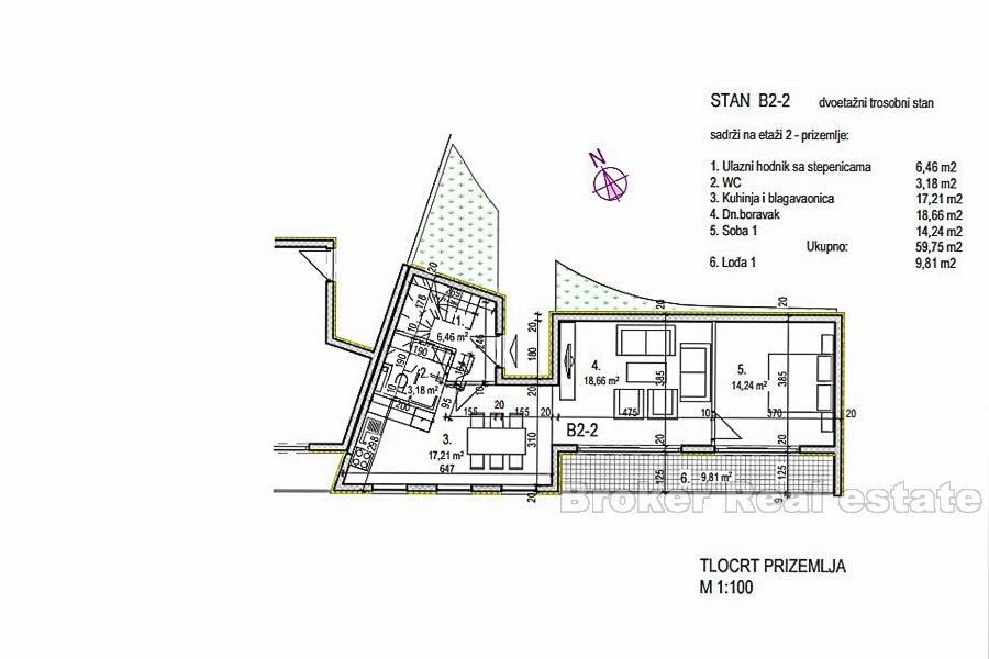
Podstrana, till salu är en attraktiv tvåvåningshus med 3 sovrum med havsutsikt. Denna vackra lägenhet är en del av ett bostadsprojekt med mindre hus i rad. Varje lägenhet är som ett litet hus på två våningar. Lägenheten består av bottenvåningen och första våningen och båda är sammankopplade med en intern trappa. På bottenvåningen finns en ingång med en trappa, ett badrum, ett kök med matsal, ett vardagsrum, ett sovrum och en loggia. På första våningen finns ett badrum, två sovrum och en glaserad terrass som ett lyxigt vardagsrum med ett glastak. Det finns en hel del investeringar i utrustningen i lägenheten, så lägenheten är verkligen kvalitetsfastigheter bekväm för att bo på ett något isolerat läge. Framför lägenheten finns det två täckta parkeringsplatser.
Plats
Split område, Dalmatiens kust
Det bredare området Split omfattar ett område på cirka 10 km runt staden Split. I det området finns även större bosättningar som Solin, Klis, Kučine, Stobreč, Žrnovnica och Podstrana. Även om bosättningarna som gränsar till Split sköts som separata, utgör de en funktionell enhet, det vill säga en tätort.
Letar du efter något annat?










