





Chorwacja, Dalmacja wybrzeże, Split obszar, Podstrana - Na sprzedaż atrakcyjny apartament z 3 sypialniami, Podstrana
ID: 2019/83Podstawowe informacje
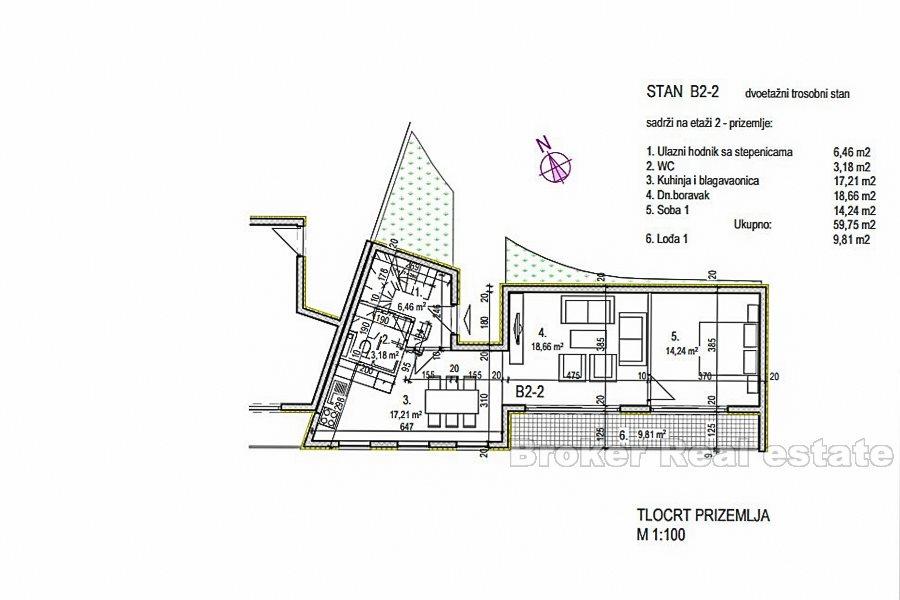
Przestrzeń życiowa:115 m2
Sypialnie:3
Łazienki:2
Podłogi:2
Zalety nieruchomości
- Widok morza
Udogodnienia
- Certyfikat Energetyczny
- Garaż
- Nowy build
- Parking
O nieruchomości
Podstrana, na sprzedaż jest atrakcyjny dwupiętrowy apartament z trzema sypialniami i widokiem na morze. To piękne mieszkanie jest częścią projektu mieszkalnego mniejszych domów z rzędu. Każde mieszkanie jest jak mały dom na dwóch piętrach. Mieszkanie składa się z parteru i pierwszego piętra i oba są połączone wewnętrzną klatką schodową. Na parterze znajduje się wejście ze schodami, łazienka, kuchnia z jadalnią, salon, sypialnia i loggia. Na pierwszym piętrze znajduje się łazienka, dwie sypialnie i przeszklony taras jako luksusowy salon ze szklanym dachem. Istnieje wiele inwestycji w wyposażenie mieszkania, więc mieszkanie jest naprawdę wysokiej jakości nieruchomości wygodne do życia w nieco odizolowanym miejscu. Przed apartamentem znajdują się dwa zadaszone miejsca parkingowe.
Lokalizacja
Split obszar, Dalmacja wybrzeże
Szerszy obszar Splitu obejmuje obszar około 10 km wokół miasta Split. Na tym obszarze znajdują się także większe osady, takie jak Solin, Klis, Kučine, Stobreč, Žrnovnica i Podstrana. Choć przylegające do Splitu osiedla zarządzane są oddzielnie, tworzą jedną jednostkę funkcjonalną, czyli aglomerację miejską.
Szukasz czegoś innego?










