





Kroatien, Dalmatiens kust, Split område, Solin - Bygga tomtarea på 1556 kvm, till salu
ID: 4676/30Basinformation
Markutrymme:1556 m2
Om fastigheten
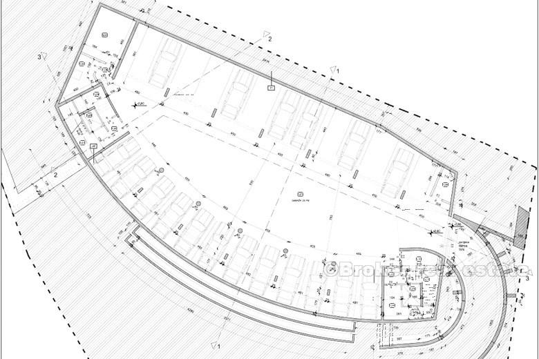
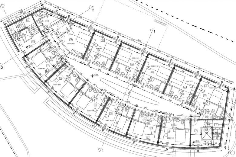
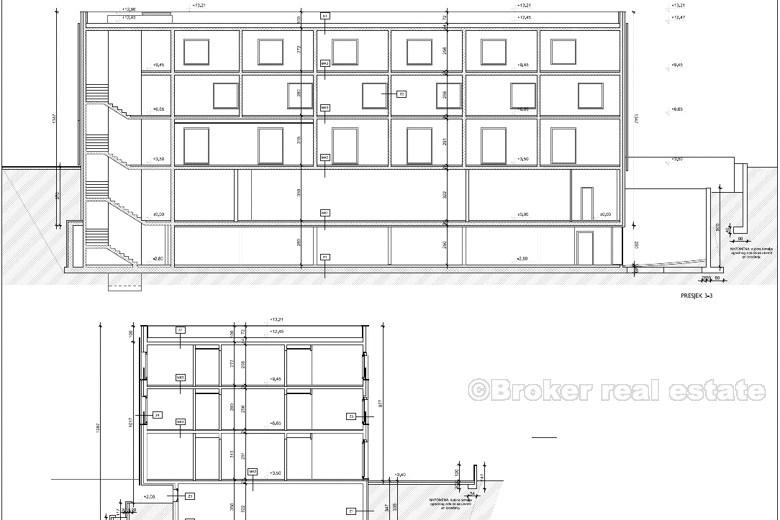
Bygga markareal på 1556m2. Det förväntas bygga hotellet med tre stjärnor, som skulle bestå av ett källar-garage, källare, bottenvåning och två våningar. Källaren skulle vara kontor för en mängd olika användningsområden, och bottenvåningen och två våningar i hotellets faciliteter. Förutsätter byggandet av ett litet hotell med 30 enheter. Med tanke på dess närhet till turistcentret i Split och omedelbar närhet av resterna av den antika staden Salona, är denna investering säkert berättigad.
Plats
Split område, Dalmatiens kust
Det bredare området Split omfattar ett område på cirka 10 km runt staden Split. I det området finns även större bosättningar som Solin, Klis, Kučine, Stobreč, Žrnovnica och Podstrana. Även om bosättningarna som gränsar till Split sköts som separata, utgör de en funktionell enhet, det vill säga en tätort.
Letar du efter något annat?









