





Kroatia, Dalmatia kysten, Split område, Solin - Bygg land tomt område på 1556 kvm, til salgs
ID: 4676/30Grunnleggende informasjon
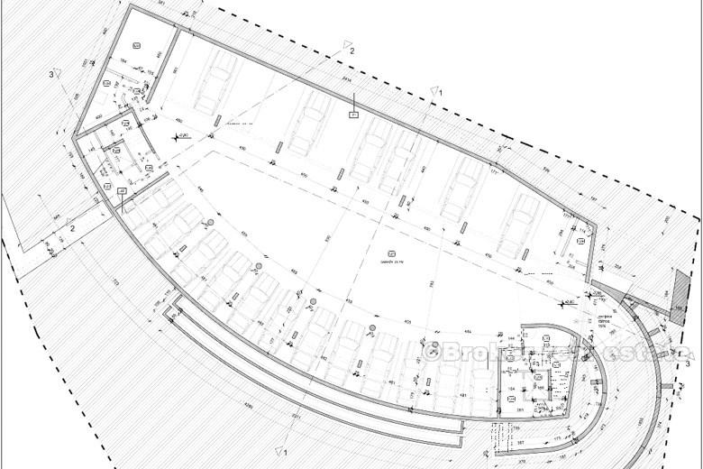
Land plass:1556 m2
Om eiendommen
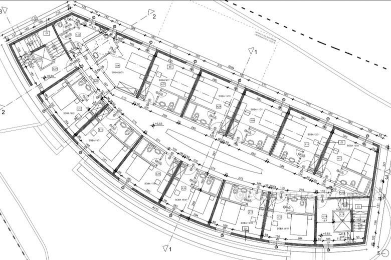
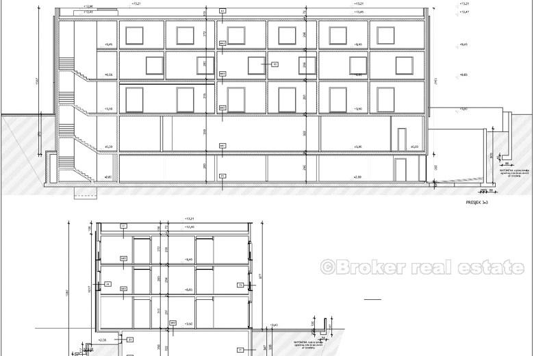
Bygg landareal på 1556m2. Det forventes å bli bygget hotellet med tre stjerner, som vil bestå av en kjeller-garasje, kjeller, etasje og to etasjer. Kjelleren vil være kontorer for en rekke bruksområder, og i første etasje og to etasjer av hotellets fasiliteter. Forutsetter bygging av et lite hotell med 30 enheter. Gitt sin nærhet til turist sentrum av Split og umiddelbar nærhet av resterne av den gamle byen Salona, er denne investeringen absolutt berettiget.
Lokasjon
Split område, Dalmatia kysten
Det bredere området av Split inkluderer et område på omtrent 10 km rundt byen Split. I det området er det også større bosetninger som Solin, Klis, Kučine, Stobreč, Žrnovnica og Podstrana. Selv om bosetningene ved siden av Split forvaltes som separate, utgjør de én funksjonell enhet, det vil si et urbant tettsted.
Leter du etter noe annet?









