




Kroatien, Dalmatiens kust, Split stad - Lägenhet i stenhuset
ID: 4483/30Basinformation
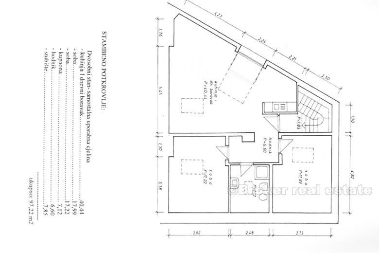
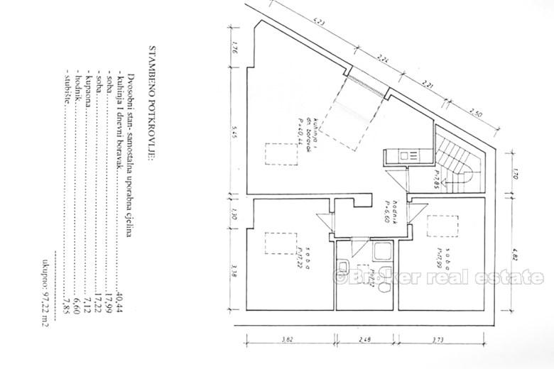
Boendeyta:97 m2
Sovrum:2
Badrum:1
Golv:1
Avstånd till havet:50 m
Om fastigheten
På loftet små stenhus, lägenhet på första våningen, 50 meter från strandpromenaden, med egen ingång från trappan. Den består av två sovrum, ett stort vardagsrum med kök, liten balkong och har tillgång till bil. Detta är perfekt, med undantag för bostäder, och för uthyrning av turist, och en kategorisering, kontor eller studio. Det renoverades helt 2004. Möjligt köp av hela byggnaden, som ligger i bottenvåningen kommersiellt utrymme.
Plats
Split stad, Dalmatiens kust
Split är den näst största staden i Kroatien efter huvudstaden Zagreb, den största staden i Dalmatien och den största staden på den kroatiska kusten. Den ligger på den östra stranden av Adriatiska havet och är spridd över en central halvö och dess omgivningar. Staden är ett intraregionalt transportnav och ett populärt turistmål, och är kopplad till de adriatiska öarna och Apenninhalvön.
Letar du efter något annat?







