





Croazia, Costa Dalmazia, Pakostane - Ampio appartamento moderno con giardino
ID: 2043/187Informazioni di base
Spazio vitale:146 m2
Spazio terrestre:142 m2
Camere da letto:2
Bagni:2
Piani:1
Distanza dal mare:200 m
Vantaggi della proprietà
- Piscina
- Nuova costruzione
Dotazioni
- Certificato energetico
- Moderna
- Parcheggio
Sulla proprietà
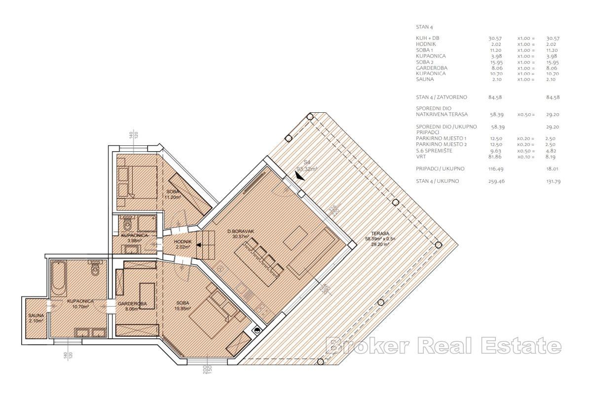
Un moderno appartamento con una camera da letto è in vendita a Pakoštane, situato a 200 metri dal mare in un edificio con un totale di 11 appartamenti.
L’appartamento ha una superficie totale di 146 m², inclusi gli arredi, mentre la superficie abitabile è di 84 m².
Si accede all’appartamento tramite una scala comune dell’edificio e l’ingresso offre accesso diretto alle zone giorno, come il soggiorno, la sala da pranzo e la cucina. Una camera da letto di 14 m² utilizza un bagno in comune, mentre la seconda camera da letto principale, di 40 m² totali, dispone di bagno privato, cabina armadio e sauna.
L’appartamento dispone di una terrazza coperta di quasi 60 m², un giardino di 82 m², un posto auto e un ripostiglio al piano terra dell’edificio.
Sono disponibili anche altri appartamenti più piccoli su piani diversi nell’edificio.
Posizione
Pakostane, Costa Dalmazia
Pakoštane è un villaggio e un comune della Croazia nella contea di Zara. È una località turistica con numerose spiagge di ghiaia e pinete. A nord della città si trova il Parco Naturale del Lago di Vrana, un luogo preferito per i picnic, ricco di pesci d'acqua dolce. Più a nord del lago, a 6 km da Pakoštane, si trova l'insediamento storico di Vrana.
Stai cercando qualcos'altro?



