





Croazia, Costa Dalmazia, Pakostane - Appartamento con due camere da letto arredato in stile moderno e parcheggio
ID: 2043/186Informazioni di base
Spazio vitale:68 m2
Camere da letto:2
Bagni:2
Piani:1
Distanza dal mare:200 m
Vantaggi della proprietà
- Piscina
Dotazioni
- Certificato energetico
- Moderna
- Parcheggio
Sulla proprietà
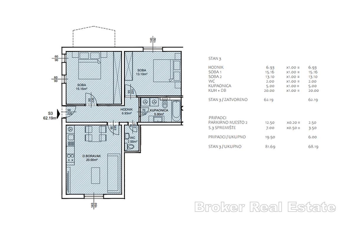
L’appartamento contrassegnato con S3 è in vendita al piano terra di un edificio ristrutturato con 11 appartamenti.
L’appartamento è composto da un ingresso, due camere da letto, un bagno in comune e un WC aggiuntivo. La cucina, la sala da pranzo e il soggiorno sono uniti in un unico ambiente. L’appartamento ha una superficie abitabile di 62 m², con un posto auto e un ripostiglio nel seminterrato, per una superficie totale di 68 m².
L’appartamento è un’ottima opportunità per l’affitto o per uso privato come casa vacanze.
Posizione
Pakostane, Costa Dalmazia
Pakoštane è un villaggio e un comune della Croazia nella contea di Zara. È una località turistica con numerose spiagge di ghiaia e pinete. A nord della città si trova il Parco Naturale del Lago di Vrana, un luogo preferito per i picnic, ricco di pesci d'acqua dolce. Più a nord del lago, a 6 km da Pakoštane, si trova l'insediamento storico di Vrana.
Stai cercando qualcos'altro?





