





Croazia, Costa Dalmazia, Sibenik - Casa familiare a un piano
ID: 5020/30Informazioni di base
Spazio vitale:125 m2
Spazio terrestre:1549 m2
Camere da letto:4
Bagni:1
Distanza dal mare:5000 m
Dotazioni
- Certificato energetico
- Parcheggio
Sulla proprietà
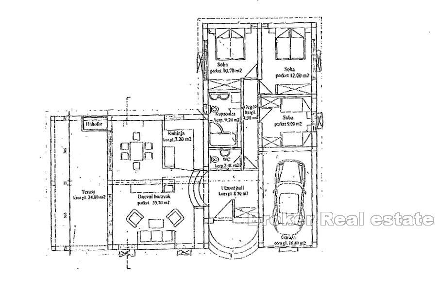
Casa con una superficie abitabile totale di 125 m2 situata su un terreno edificabile pianeggiante e paesaggistico di 1549 m2 vicino alla città di Sibenik.
In natura, questa è una casa familiare, al piano terra (ha una mansarda), costruita con materiali solidi secondo gli standard del 2014.
Si compone di ingresso, disimpegno, soggiorno, cucina, 4 camere, bagno, wc, ampio terrazzo coperto con barbecue, e locale tecnico.
La casa è decorata e regolarmente mantenuta. Il riscaldamento dell’acqua calda è a pannelli solari, e dispone di riscaldamento centralizzato a pellet, riscaldamento a pavimento in bagno e toilette, due condizionatori e isolamento esterno.
Si trova in una zona di edilizia residenziale su un terreno edificabile paesaggistico con diversi alberi a baldacchino senza paesaggi orticoli.
Si trova ad una distanza di 5 km dal mare e dalle prime spiagge, a 12 km dalla città di Sibenik ea 26 km dall’aeroporto.
Nelle vicinanze si trovano tutti i servizi necessari come: negozio, panetteria, ristoranti, chiesa, stazione degli autobus, stazione dei treni, scuola…
C’è la possibilità di acquistare ulteriore terreno edificabile di 638m2 e il prezzo sarebbe di 360.000 euro. Maggiori dettagli sul terreno con il numero di riferimento 5020/30a.
Posizione
Sibenik, Costa Dalmazia
Sebenico, storicamente conosciuta come Sebenico, è una città storica della Croazia, situata nella Dalmazia centrale, dove il fiume Krka sfocia nel mare Adriatico. Sebenico è il centro politico, educativo, dei trasporti, industriale e turistico della Contea di Sebenico e Tenin ed è anche la terza città più grande della Dalmazia.
Stai cercando qualcos'altro?







