





Croazia, Isole Dalmazia, Solta - Appartamento completamente arredato, in vendita
ID: 2014/60Informazioni di base
Spazio vitale:54 m2
Camere da letto:2
Bagni:1
Piani:1
Distanza dal mare:200 m
Sulla proprietà
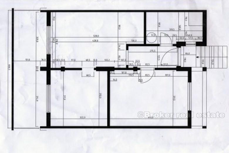
L’appartamento si trova al primo piano, al centro dell’edificio. Dal mare si trova a 200 m.
Si compone di: 49.32 m2 soggiorno con cucina e sala da pranzo, due camere da letto, bagno e corridoio, e la relativa terrazza di 12,10 m2 e scale con sbarco di 3,54 m2. IU. Superficie totale di 53,29 m2 contabilità
L’appartamento è completamente arredato e recentemente decorato, venduto con o senza mobili negoziabili. La vicinanza alla spiaggia di 200 m, dispone di un posto auto direttamente sopra l’appartamento (non incluso nel prezzo). L’appartamento è caratterizzato da un bicchiere di fieno, un sacco di ombrelloni e un ampio balcone per godere tutti i giorni.
Posizione
Solta, Isole Dalmazia
Solta si trova nell'arcipelago della Dalmazia centrale, a ovest dell'isola di Brač, a sud di Spalato e ad est delle isole Drvenik. Sulla costa nord-orientale dell'isola si trovano le grandi baie di Rogač e Nečujam. Il principale centro di pesca è Maslinica, che è esposta solo ai venti nord-occidentali, rendendola un buon riparo per le barche più piccole.
Stai cercando qualcos'altro?






